2010
CA08103002Z-EN
www.eaton.comContactor combinations
Reversing combinations
Individual components of the combination
Spare auxiliary contacts
Circuit diagram
Notes
Contactor Q11
Contactor Q12
Q11
Q12
Mechanical
interlock
Part no.
Part no.
DILEM-10
+ 11DILEM
DILEM-10
+ 11DILEM
+
DILEM-10-G
+ 11DILEM
DILEM-10-G
+ 11DILEM
+
DILM7-01
+ DILA-XHI20
DILM7-01
+ DILA-XHI20
+
DILM7-01
+ DILA-XHI20
DILM7-01
+ DILA-XHI20
+
DILM9-01
+ DILA-XHI20
DILM9-01
+ DILA-XHI20
+
DILM9-01
+ DILA-XHI20
DILM9-01
+ DILA-XHI20
+
DILM12-01
+ DILA-XHI20
DILM12-01
+ DILA-XHI20
+
DILM12-01
+ DILA-XHI20
DILM12-01
+ DILA-XHI20
+
DILM17-01
+ DILA-XHI20
DILM17-01
+ DILA-XHI20
+
DILM17-01
+ DILA-XHI20
DILM17-01
+ DILA-XHI20
+
DILM25-01
+ DILA-XHI20
DILM25-01
+ DILA-XHI20
+
DILM25-01
+ DILA-XHI20
DILM25-01
+ DILA-XHI20
+
DILM32-01
+ DILA-XHI20
DILM32-01
+ DILA-XHI20
+
DILM32-01
+ DILA-XHI20
DILM32-01
+ DILA-XHI20
+
DILM40
+ DILM150-XHI11
DILM40
+ DILM150-XHI11
–
–
+
DILM50
+ DILM150-XHI11
DILM50
+ DILM150-XHI11
–
–
+
DILM65
+ DILM150-XHI11
DILM65
+ DILM150-XHI11
–
–
+
34
33
34
33
Q12
14
Q11
14
13
13
Q12
22
21
Q11
22
21
Q11
A1
A2
Q12
A1
A2
(-)
N
I
14
13
13
II
21
22
22
21
21
22
0
14
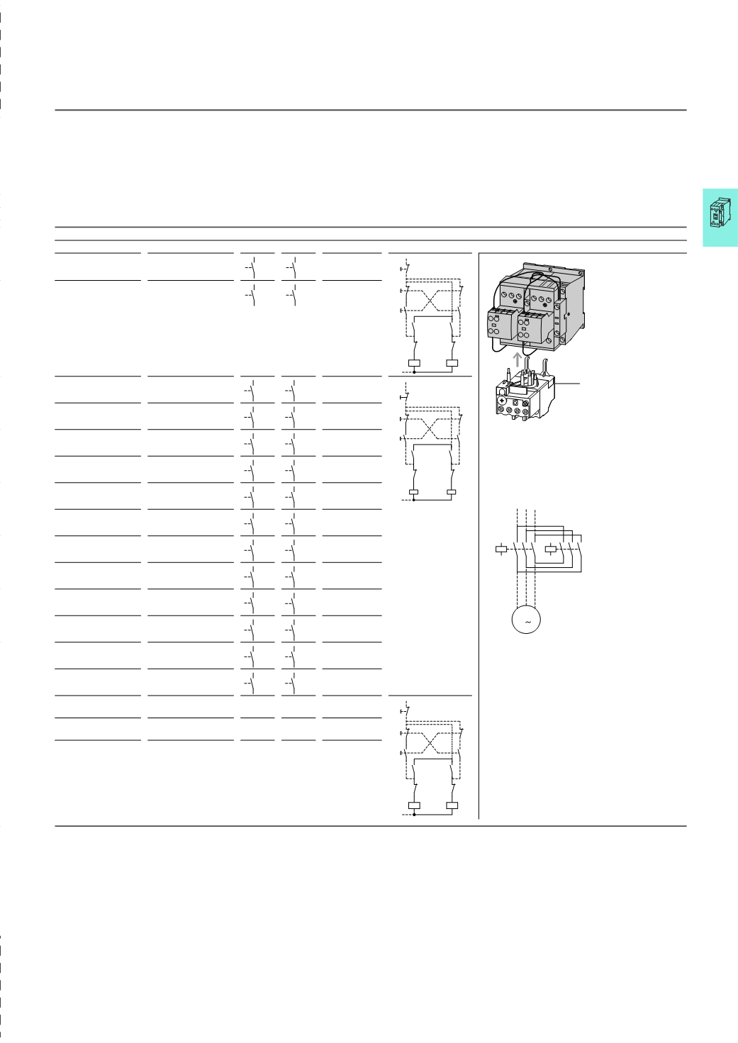
Accessories
Page
1
Overload relay
→ 6/8
Accessories
→ 5/56
Reversing contactors
DIULM7/21 to DIULM65/11 with mechanical
interlock
1
U V W
Q11
M M1
Q12
1 3 5
6 4 2
1 3 5
6 4 2
3
34
33
34
33
64
63
64
63
Q12
54
Q11
54
53
53
Q12
22
21
Q11
22
21
Q11
A1
A2
Q12
A1
A2
I
14
13
13
II
21
22
22
21
21
22
0
14
64
63
64
63
64
63
64
63
64
63
64
63
64
63
64
63
64
63
64
63
64
63
64
63
64
63
64
63
64
63
64
63
64
63
64
63
64
63
64
63
64
63
64
63
Q12
14
Q11
14
13
13
Q12
22
21
Q11
22
21
Q11
A1
A2
Q12
A1
A2
(-)
N
I
14
13
13
II
21
22
22
21
21
22
0
14
5/53
DIUL
HP05053EN




