20/66
CI insulated enclosures
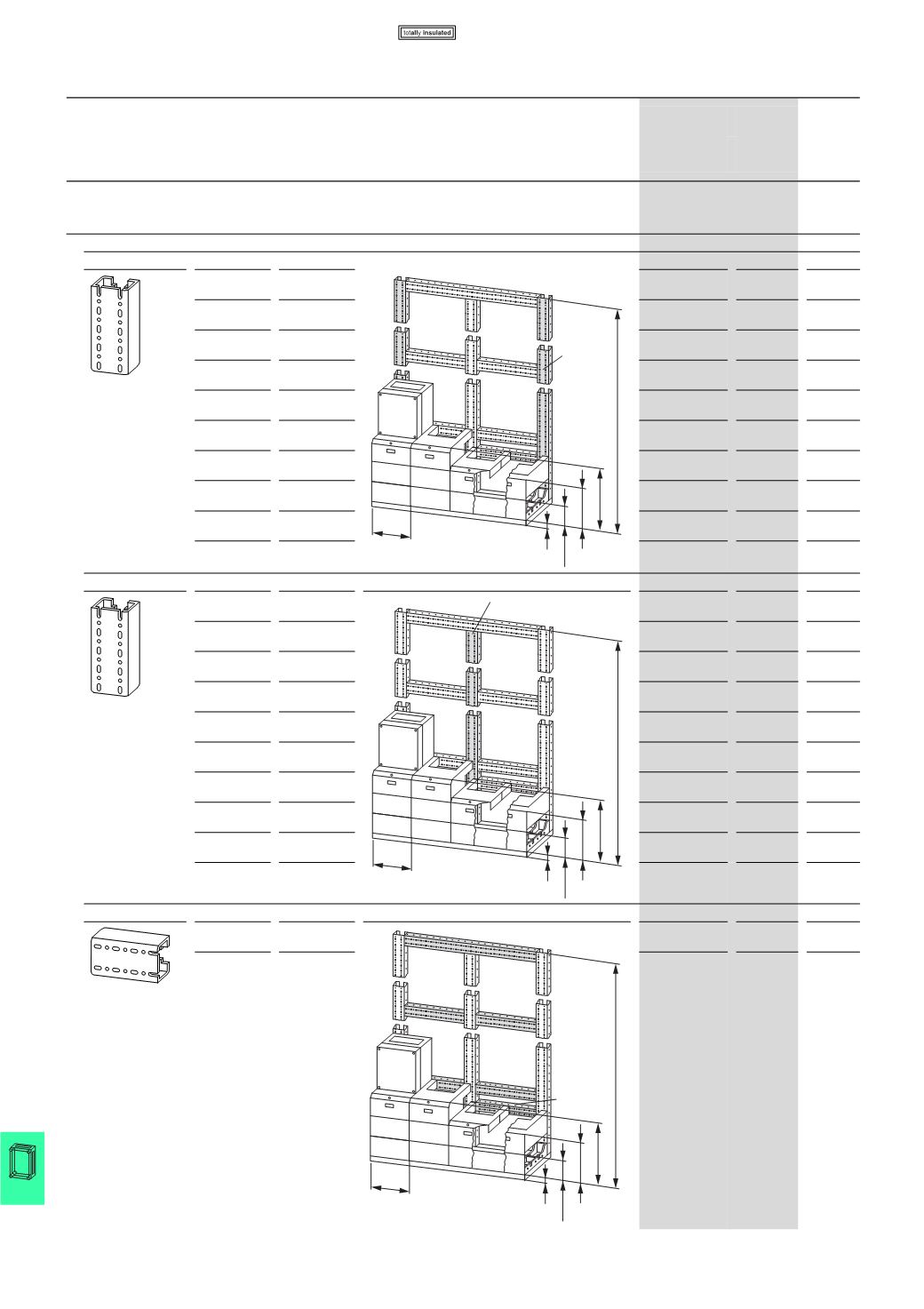
Mounting frames
2010
CA08103002Z-EN
www.eaton.comDistribution board assembly
Section for mounting frames
•
Galvanized C sections
•
Order fixing screws separately
For floor-standing distribution boards, 4 panels wide
Vertical section (outside)
14
x 125
1750
WS14-ID
027405
1
off
15
x 125
1875
WS15-ID
029778
1
off
16
x 125
2000
WS16-ID
032151
1
off
17
x 125
2125
WS17-ID
034524
1
off
18
x 125
2250
WS18-ID
036897
1
off
19
x 125
2375
WS19-ID
039270
1
off
20
x 125
2500
WS20-ID
034525
1
off
21
x 125
2625
WS21-ID
036898
5
off
22
x 125
2750
WS22-ID
039271
5
off
23
x 125
2875
WS23-ID
041644
1
off
Vertical section (centre)
14
x 125
1700
WSM14-ID
044017
5
off
15
x 125
1825
WSM15-ID
046390
5
off
16
x 125
1950
WSM16-ID
048763
5
off
17
x 125
2075
WSM17-ID
051136
5
off
18
x 125
2200
WSM18-ID
053509
5
off
19
x 125
2325
WSM19-ID
055882
5
off
20
x 125
2450
WSM20-ID
058255
5
off
21
x 125
2575
WSM21-ID
060628
5
off
22
x 125
2700
WSM22-ID
063001
5
off
23
x 125
2825
WSM23-ID
065374
5
off
Horizontal profiles
6
x 125
675
WW6A-ID
067747
1
off
12
x 125
1400
WW12-ID
070120
1
off
125
mm grid
spacing
Length
For use with
Part no.
Article no.
Price
See price
list
Std. pack
Quantity
mm
2
x
125
50
4
x
125
6
x
125
n
x
125
WS...-ID
n = 14 – 23
3
x
125
2
x
125
50
4
x
125
6
x
125
n
x
125
WSM...-ID
n = 14 – 23
3
x
125
WW12-ID
WW6A-ID
WW6A-ID
WW6A-ID
WW6A-ID
2
x
125
50
4
x
125
6
x
125
n
x
125
3
x
125
WS...-ID, WW...-ID
HPL20066EN




