CI insulated enclosures
Mounting frames
2010
CA08103002Z-EN
www.eaton.comDistribution board assembly
20/65
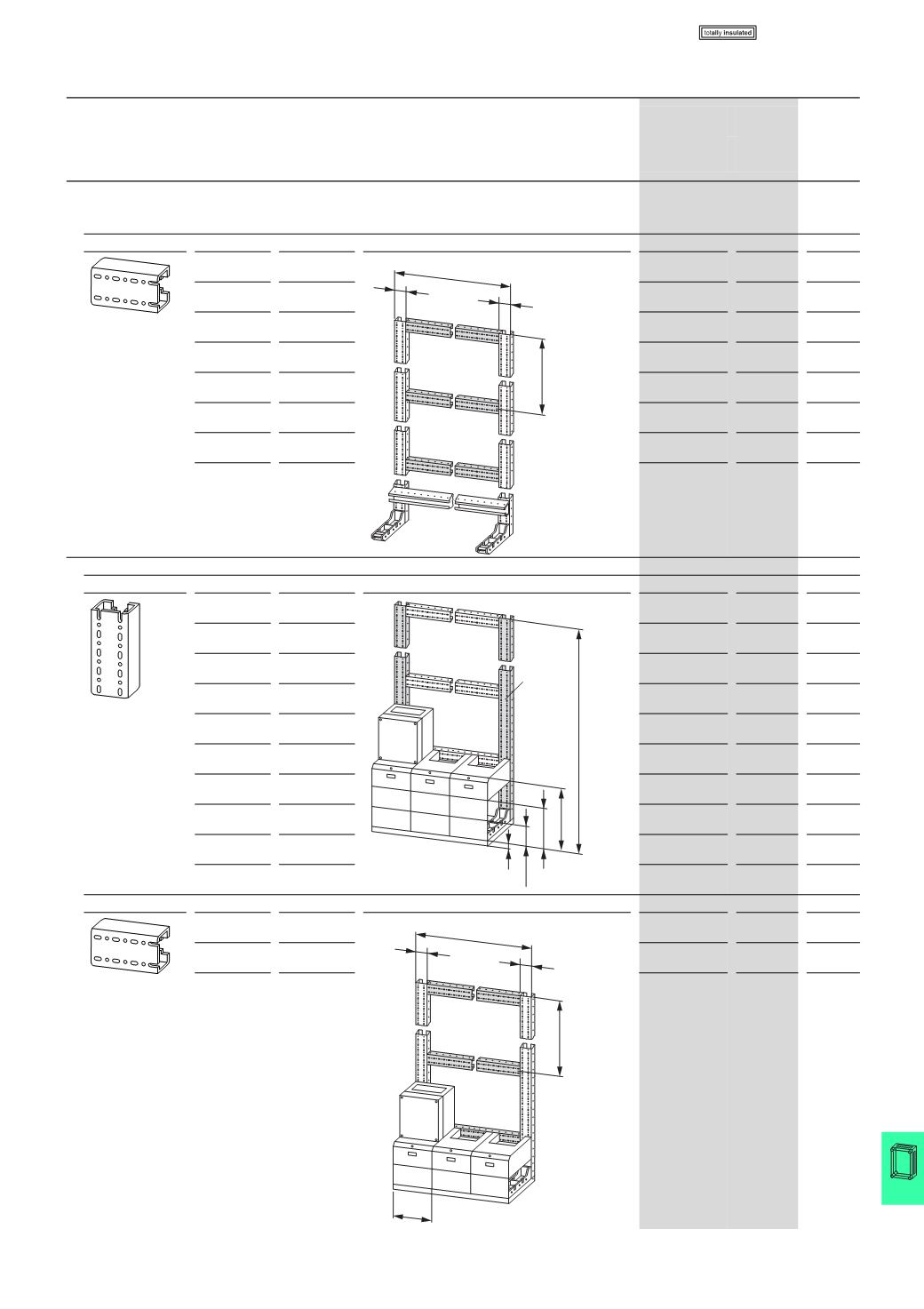
Section for mounting frames
•
Galvanized C sections
•
Order fixing screws separately
Horizontal profiles
2
x 125
150
WW2-ID
041643
5
off
3
x 125
275
WW3-ID
044016
5
off
4
x 125
400
WW4-ID
046389
5
off
5
x 125
525
WW5-ID
048762
5
off
6
x 125
650
WW6-ID
051135
1
off
7
x 125
775
WW7-ID
053508
5
off
8
x 125
900
WW8-ID
055881
1
off
9
x 125
1025
WW9-ID
058254
1
off
For floor-standing distribution boards, 3 panels wide
Vertical section (outside)
14
x 125
1750
WS14-ID
027405
1
off
15
x 125
1875
WS15-ID
029778
1
off
16
x 125
2000
WS16-ID
032151
1
off
17
x 125
2125
WS17-ID
034524
1
off
18
x 125
2250
WS18-ID
036897
1
off
19
x 125
2375
WS19-ID
039270
1
off
20
x 125
2500
WS20-ID
034525
1
off
21
x 125
2625
WS21-ID
036898
5
off
22
x 125
2750
WS22-ID
039271
5
off
23
x 125
2875
WS23-ID
041644
1
off
Horizontal profiles
3
x 125
275
WW3-ID
044016
5
off
6
x 125
650
WW6-ID
051135
1
off
9
x 125
1025
WW9-ID
058254
1
off
125
mm grid
spacing
Length
For use with
Part no.
Article no.
Price
See price
list
Std. pack
Quantity
mm
n = 2 – 9
50
50
n
x
125
WW...-ID
F
750
2
x
125
50
4
x
125
6
x
125
n
x
125
WS...-ID
n = 14 – 23
F
750
n
x
125
50
50
3
x
125
n = 3, 6, 9
WW...-ID
WS...-ID, WW...-ID
HPL20065EN




