Soft starters DS6, DS7, DM4
Fuse bases, fuses
2010
CA08103002Z-EN
www.eaton.com9/63
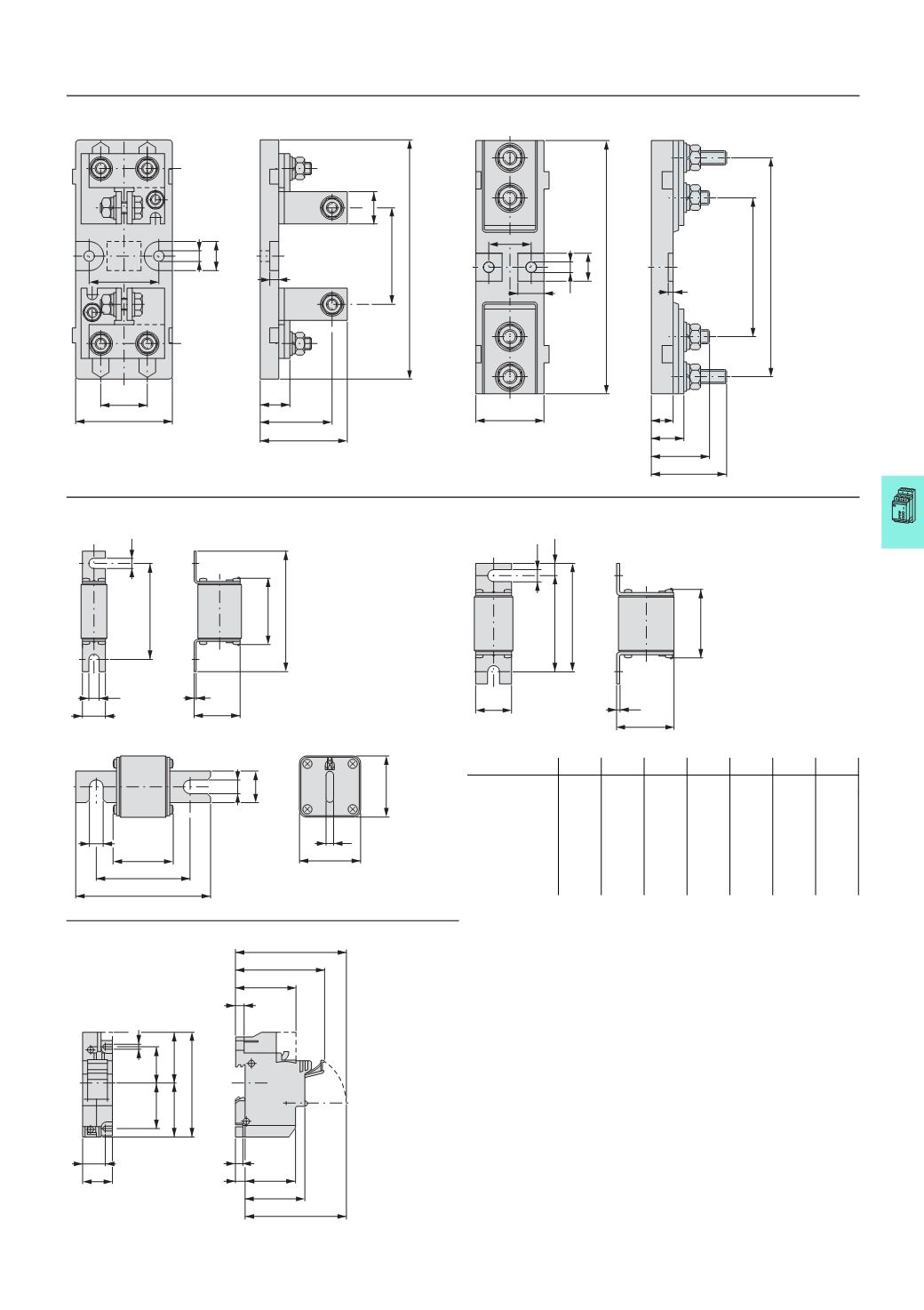
Fusebases, fuses
Fuse base
21.313.02
21.189.01
Fuses
20.282.20-...
20.189.20-...
20.6
X
0.20
51.060.04
26
63
76
8
9
25
40
85
50
27
e
205
40
6.5
16
146
80
126
25
15.5
13
16
34
44
3
8.5
80
8.5
2
20
38
55
100
10.3
10.5
80
105
28.8
2.5
47
56
e1
i
e
a2
a1
i
b
e1
e2
Part no.
a1
a2
b
e
e1
e2
I
20.610.32-200
109
47.5 26
76
51
6
11
20.610.32-350
109
47.5 26
76
51
6
11
20.610.32-450
109
47.5 26
76
51
6
11
20.610.32-500
109
47.5 26
76
51
6
11
20.610.32-630
109
47.5 26
76
51
6
11
20.610.32-900
109
49
35
76
73
6
11
20.610.32-1250 109
49
35
76
73
6
11
20.5
26
6
9 44.5
52.5
89
8
53.5
80
98
35.2
5
43.8
51.7
54.3
106




