Motor-starter combinations
DOL starters, reversing starters
2010
CA08103002Z-EN
www.eaton.com8/45
DOL starters, reversing starters
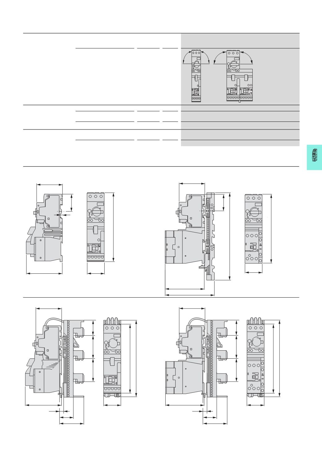
Dimensions
General
Standards
IEC/EN 60947-4-1, VDE 0660
UL 508 (please enquire)
CSA C 22.2 No. 14 (please enquire)
Mounting position
Main contacts
Rated impulse withstand voltage
U
imp
V AC 6000
Overvoltage category/pollution
degree
III/3
Rated operating voltage
U
e
V
230 - 415
Further technical data
Motor protective circuit breaker
PKZM0, PKE
→Chapter 7
Contactors DILM
→Chapter 5
DOL starters
MSC-D-…-M7[…15]…
MSC-D-…-M17[…32]…
MSC-D-…-M7[…15]BBA…
MSC-D-…-M17[…32]BBA…
90
º
90
º
90
º
90
º
95
45
67
6
46
180
45
180
97.4
123.4
67
46
228
95
35
63
10
45
67
40
60
60
180
200
a
35
63
10
45
67
40
60
60
180
200
a
97.4
MSC-D, MSC-R, MSC-DE(A)




