84
HAVELLS
MCCB Panel Board and Enclosures
MCCB Panel board General Characteristics
250A
400A
630A
IP Rating
Paint Specification
Conditional Short Circuit Rating
Short Circuit Withstand Rating
IP3X
RAL 7035 epoxy powder coating
35kA to BS EN 61439-1
30kA – 1s to BS EN 61439-1
IP3X
RAL 7035 epoxy powder coating
50kA to BS EN 61439-1
30kA – 1s to BS EN 61439-1
IP3X
RAL 7035 epoxy powder
coating
50kA to BS EN 61439-1
50kA – 1s to BS EN 61439-1
Cable Capacities
MCCB/SwD incoming device
Incoming earth terminal
Incoming neutral terminal
Outgoing earth terminal
Outgoing neutral terminal
MCCB outgoing device
* Recommended 120mm
2
** Recommended 1 x 240mm
2
*** Recommended 2 x 185mm
2
150mm2 max*
M10
M8
50mm
2
(16)
50mm
2
(16)
16A-160A = 70mm2
2 x 240mm2** (M12 stud)
M10
M8
50mm
2
(18)
50mm
2
(20)
16A-160A = 70mm2
2 x 240mm2*** (M12 stud)
M10
M12
70mm
2
(18)
70mm
2
(20)
16A-160A = 70mm
2
,
200-250A = 150mm
2
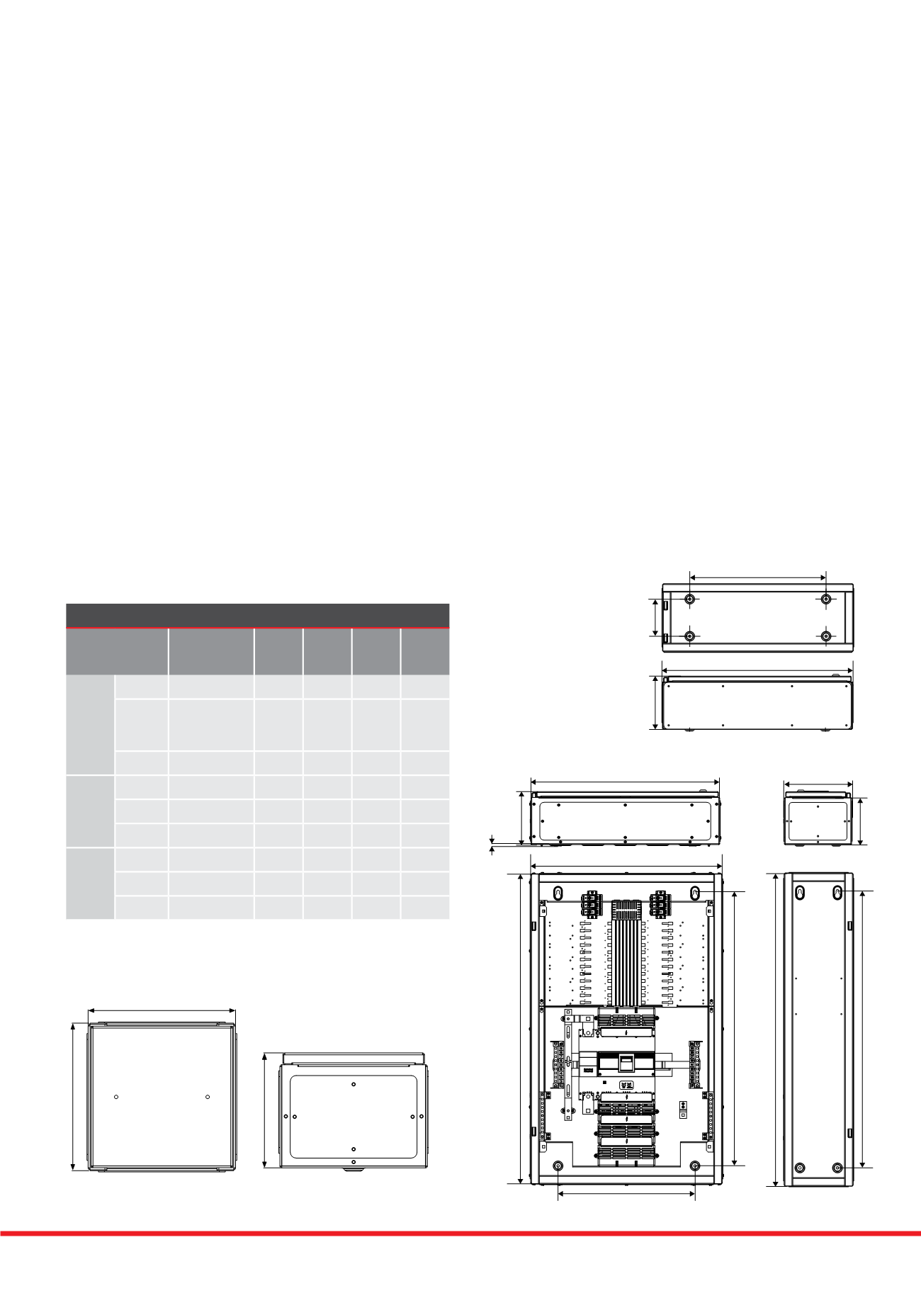
MCCB Panel Board
Ways Part No
A
(mm)
B
(mm)
C
(mm)
D
(mm)
250A
4 PSB254 888 700 782 564
6,8
PSPB256/
PSPB258
1034 700 940 654
12 PSPB2512 1190 700 1097 564
400A
6 PSPB406 1055 700 922 500
12 PSPB412 1295 700 1160 500
18 PSPB4018 1530 700 1396 500
630A
6 PSPB636 1175 850 1043 650
8 PSPB638 1255 850 1122 650
12 PSPB6312 1415 850 1280 650
Note:
Depth for 250A, 400A, 630A = 197mm
250
197
Side Cable Box
A
C
C
B
B
197
5.5
Panel Board
D
A
250
197
C
C
B
B
B
197
5.5
D
A
D
136
Meter Box
197
250
197
Side Cable Box
A
C
C
B
B
197
5.5
Panel Board
D
A
195
250
250
Corner Filler Box




