3.50
General Catalogue • Commercial Distribution • Technical
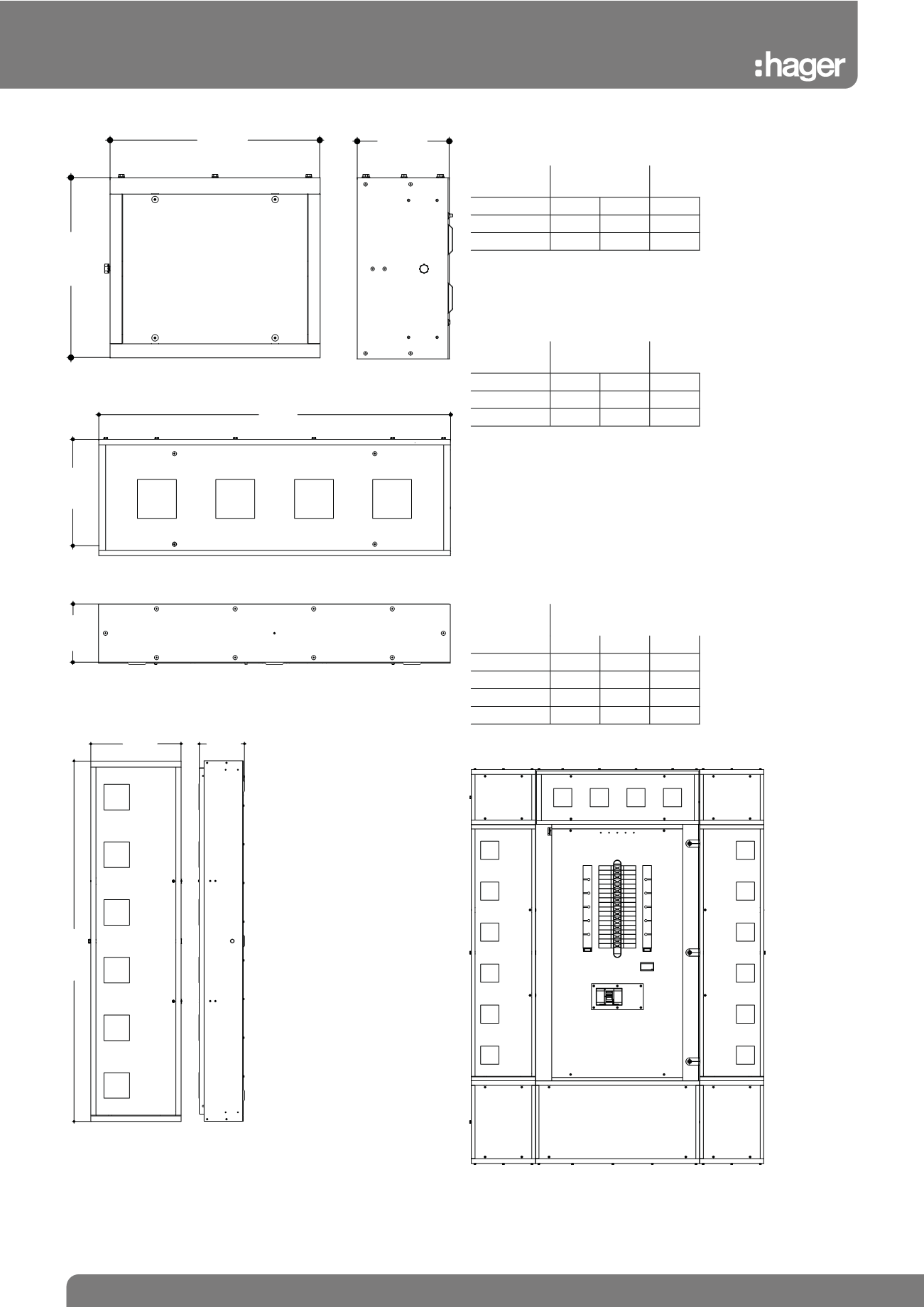
Meter Enclosures
Dimensions
Corner Filler Enclosures
Dimensions
(mm)
Width Height Depth
JF300CF
350 300 160
JF450CF
350 450 160
Side Enclosures
Dimensions
(mm)
Width Height Depth
JF12504SM
350 1250 160
JF14006SM
350 1400 160
JF15508SM
350 1550 160
JF17009SM
350 1700 160
Top/Bottom Enclosures
Dimensions
(mm)
Width Height Depth
JF3004TM
900 300 160
JF4508TM
900 450 160
Height
Width
Depth
Height
Width
Depth
Height
Depth
Width




