20/90
CI insulated enclosures
2010
CA08103002Z-EN
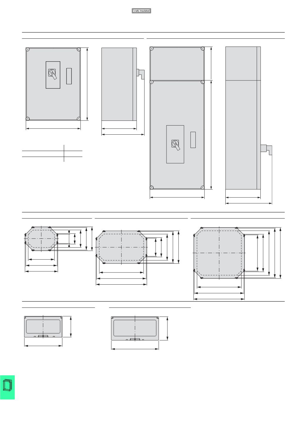
www.eaton.comPrepared MCCB enclosures
MCCB.../I45E-200
MCCB3-630/I48/I43E-200
Doors
T-CI23
T-CI43
T-CI44
Hinged flaps
K-A
KG-A
225
b
500
375
225
320
750
250
375
Part no.
b
MCCB2-250/I45E-200
298.5
MCCB3-400/I45E-200
320
217
225
62
69
155
163
119
181
342
350
124
132
217
225
181
306
342
350
249
257
342
350
306
306
146
80
185
90
MCCB2-..., MCCB3-..., T-CI..., K...-A




