20/12
CI insulated enclosures
Distribution board with/without gland plates fitted
2010
CA08103002Z-EN
www.eaton.comBasic enclosures
–
CI44-125
012452
1
off
3
x 14 - 68
KST44-125
088758
–
CI44-150
017198
3
x 14 - 68
KST44-150
091131
–
CI44-200
021944
3
x 14 - 68
KST44-200
093504
–
CI44-250
026690
3
x 14 - 68
KST44-250
095877
–
CI45-200
001896
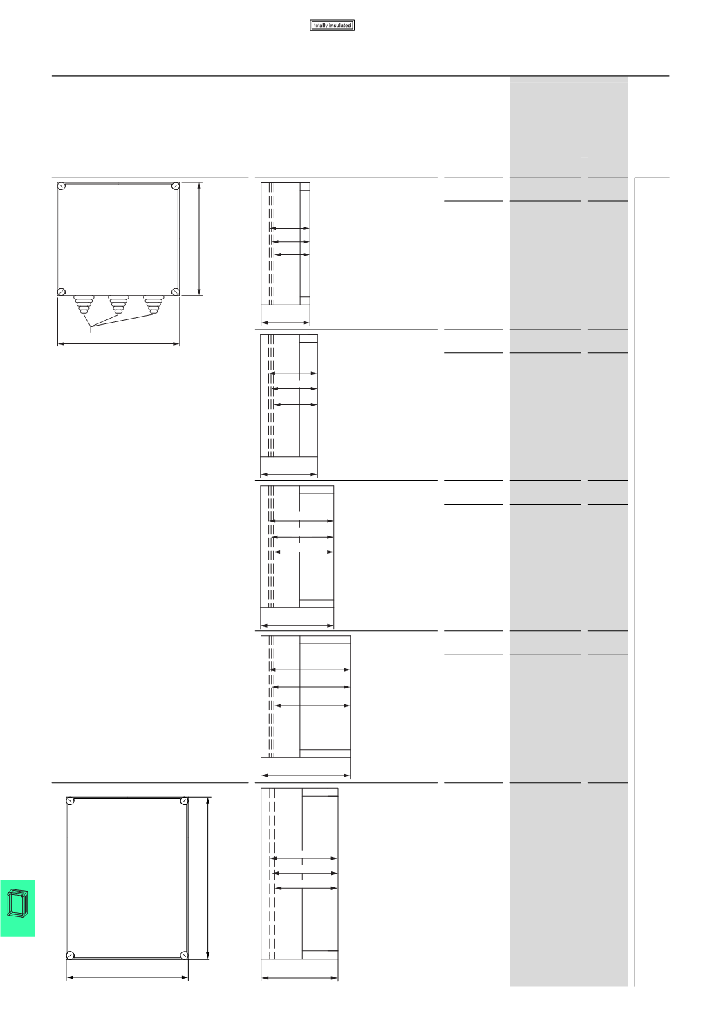
Dimensions
Enclosure depth:
Dimensions from top:
1.
Mounting depth for mounting plate
2.
Mounting depth for mounting rail 7.5 mm height
3.
Enclosure depth for mounting rail 15 mm height
4.
Enclosure depth
Cable entry
outer diameter
Part no.
Article no.
Price
See price
list
Std.
pack
mm
mm
mm
375
375
KST44-...
150
117.5
125
110
142.5
175
135
150
225
192.5
200
185
275
242.5
250
235
500
375
192.5
200
225
185
CI..., KST...
HPL20012EN




