CI insulated enclosures
Distribution board with/without gland plates fitted
2010
CA08103002Z-EN
www.eaton.comBasic enclosures
20/11
2
x 14 - 54
KST34-150
074520
1
off
2
x 14 - 54
KST34-200
079266
–
CI43-125
017527
3
x 14 - 68
KST43-125
081639
–
CI43-150
022273
3
x 14 - 68
KST43-150
084012
–
CI43-200
027019
3
x 14 - 68
KST43-200
086385
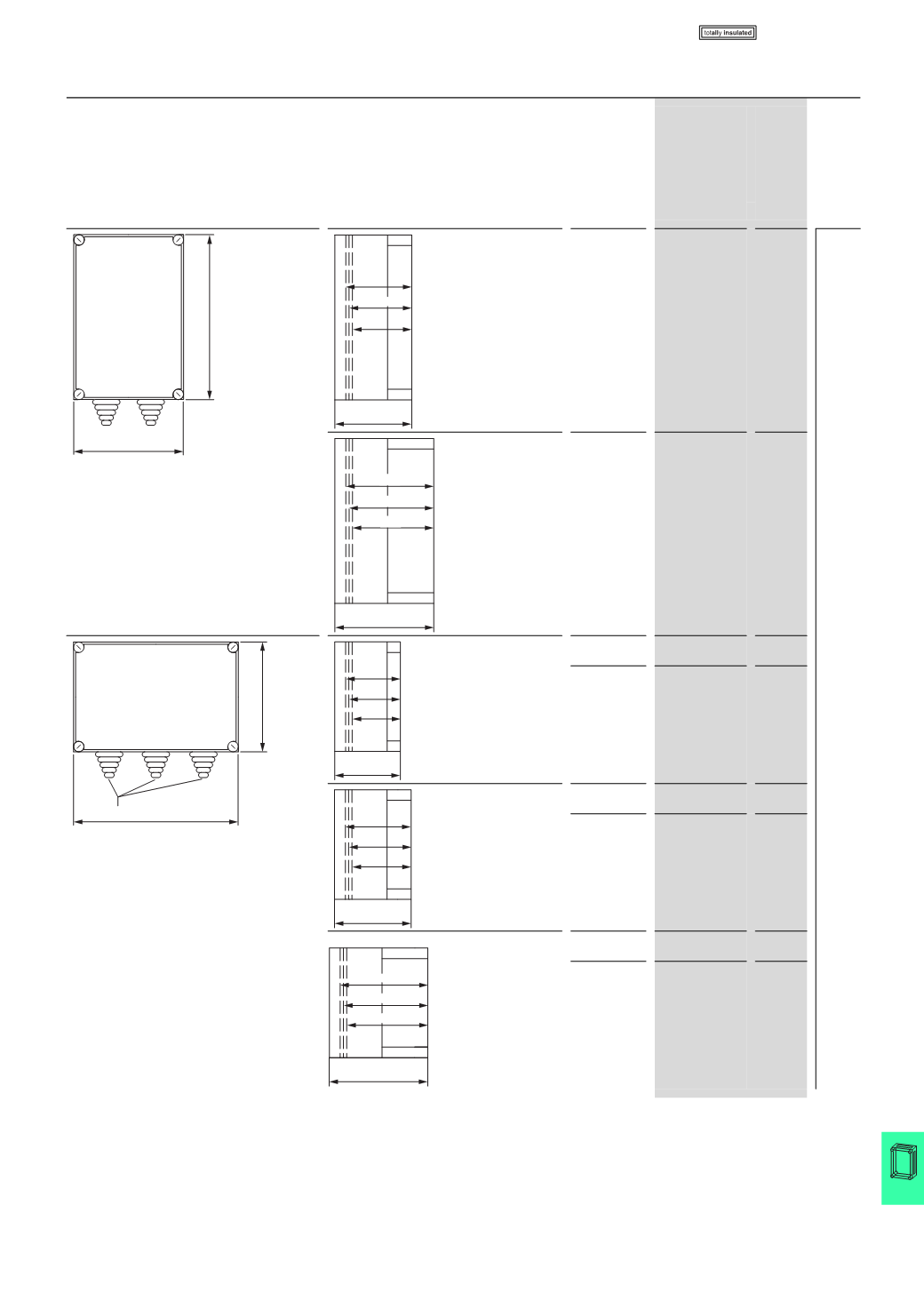
Dimensions
Enclosure depth:
Dimensions from top:
1.
Mounting depth for mounting plate
2.
Mounting depth for mounting rail 7.5 mm height
3.
Enclosure depth for mounting rail 15 mm height
4.
Enclosure depth
Cable entry
outer diameter
Part no.
Article no.
Price
See price
list
Std.
pack
mm
mm
mm
375
250
142.5
175
135
150
225
192.5
200
185
250
375
KST43-...
150
117.5
125
110
150
135
175
142.5
200
225
185
192.5
CI..., KST...
HPL20011EN




