7/62
Motor-protective circuit-breakers PKZ2
Remote operators
2010
CA08103002Z-EN
www.eaton.comRemoteoperators
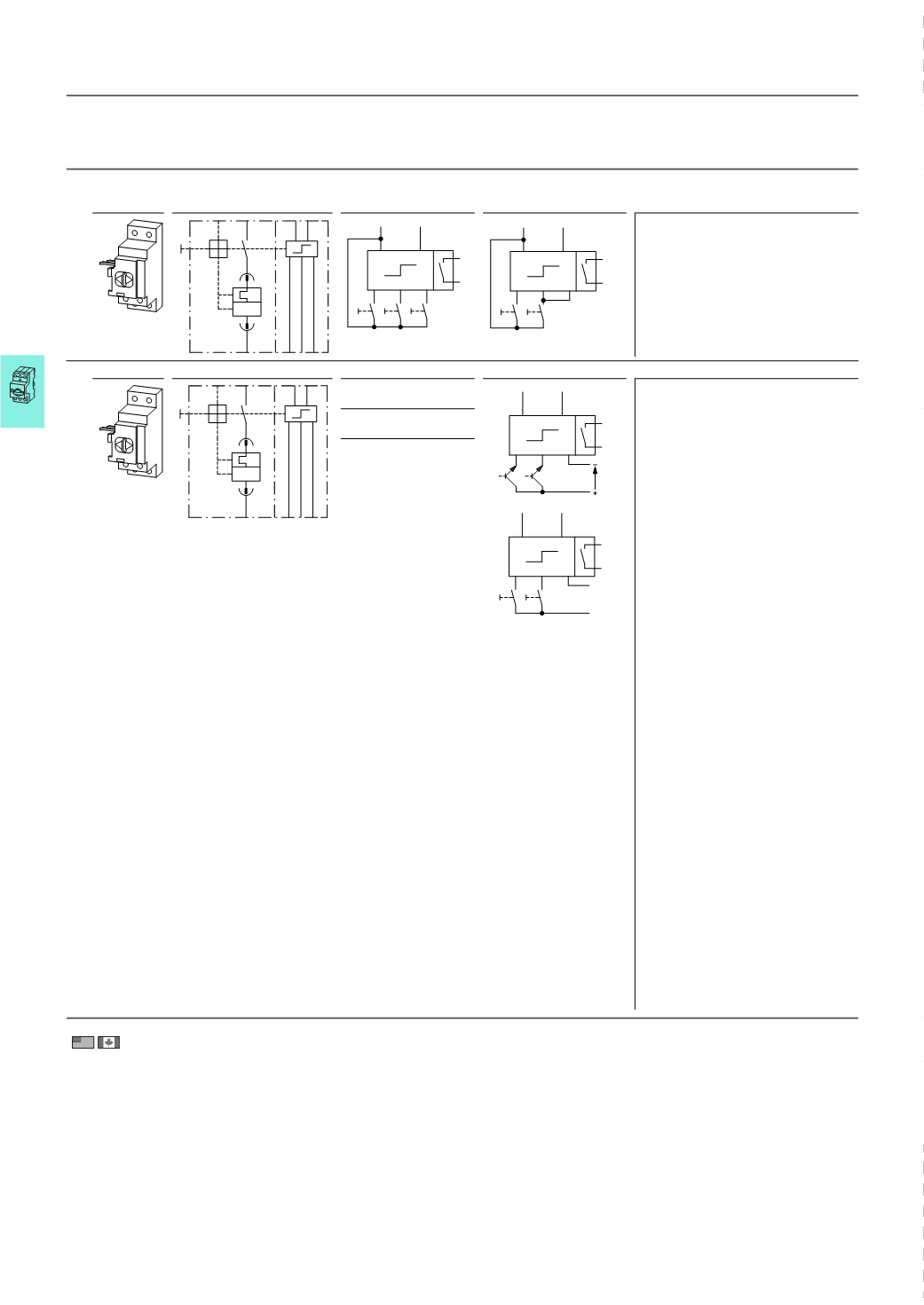
Circuit diagrams
Circuit diagram for pulsed operation
OFF and RESET separate OFF equals RESET
RE-PKZ2 remote operator
Actuation through auxiliary contact
Power and control sections (line and control)
have the same reference potential. Pulsed
actuation (≧ 2 VA/W, 15 ms) and two-wire
control actuation are possible. Upon activation,
the power section is supplied with power
directly from the mains (700 VA/W, 30 ms). The
control section can be actuated through NHI,
AGM, ETS4-VS3, M22-(C)K…, PLC with floating
contacts without RC suppressor circuit.
Actuation through PLC semiconductor outputs
–
The power section and control section (line and
control) are galvanically isolated from each
other. Control section always 24 V. Safe
isolation between the power section and
control section is guaranteed. Pulsed (≧ 2 VA/
W, 15 ms) and two-wire control activation are
possible. The control section can be actuated
directly through PLC electronic outputs
(24
VDC). When actuated, the power section is
supplied with power directly from the mains
(700
VA/W, 30 ms).
–
–
Information relevant for export to North America
Product Standards UL 508; CSA-C22.2 No. 14; IEC60947-4-1; CE marking
UL File No.
E29184
UL CCN
NKCR
CSA File No.
12528
CSA Class No.
3211-05
NA Certification UL Listed, CSA certified
72
A20
74
L
A40 B20
T
I
>
L(+)
N(-)
72
74
A20
A40
B20
O
I
33
34
LINE
CONTROL
ON
OFF
RESET
L(+)
N(-)
72
74
A20
A40
B20
O
I
33
34
LINE
CONTROL
ON
OFF
RESET
72 74
A20 A30 A0
L
T
I
>
L(+)
N(-)
72
74
33
34
A20
A30
A0
24
VDC
LINE
CONTROL
OFF/
RESET
ON
L(+)
N(-)
72
74
33
34
A20
A30
A0
I
O
24
VDC
AC/DC
LINE
CONTROL
OFF/
RESET
ON
RE-PKZ, RS-PKZ
HPL07062EN




