Contactors
Basic devices up to 200 A
2010
CA08103002Z-EN
www.eaton.com5/137
Basicdevicesup to 200A
Completeunits forcurrents greater than 170A
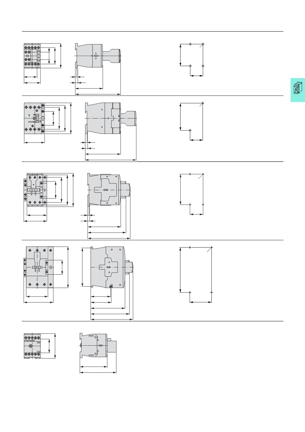
Contactor with auxiliary contact module
DILMP20
DILMP32
DILMP45
Distance at side to
grounded parts: 6 mm
Contactors
DILMP63
DILMP80
Distance at side to
grounded parts: 6 mm
DILMP125 DILMP160 DILMP200
Clearance at side to earthed
parts: 10 mm
Motor suppressor module
DILM12-XMSM
18
45
68
45
36
6.5
75
117
3.2
35
2
x
M4
60
38
71
60.4
85
58
138
6.5
97.4
4.5
35
2
x
M4
75
6.9
4.7
114
132.1
147
74
85
57
86.4
104
115
45
2
x
M4
105
122
133
82.5
85.5
142
175
160
57
170
156
70
4
x
M6
156
38.3
68
75
101.2
DILMP...




