5/96
Contactors
Switching of DC current
2010
CA08103002Z-EN
www.eaton.comDC current switching
– – – – –
when necessary
conductor to be
supplied by customer
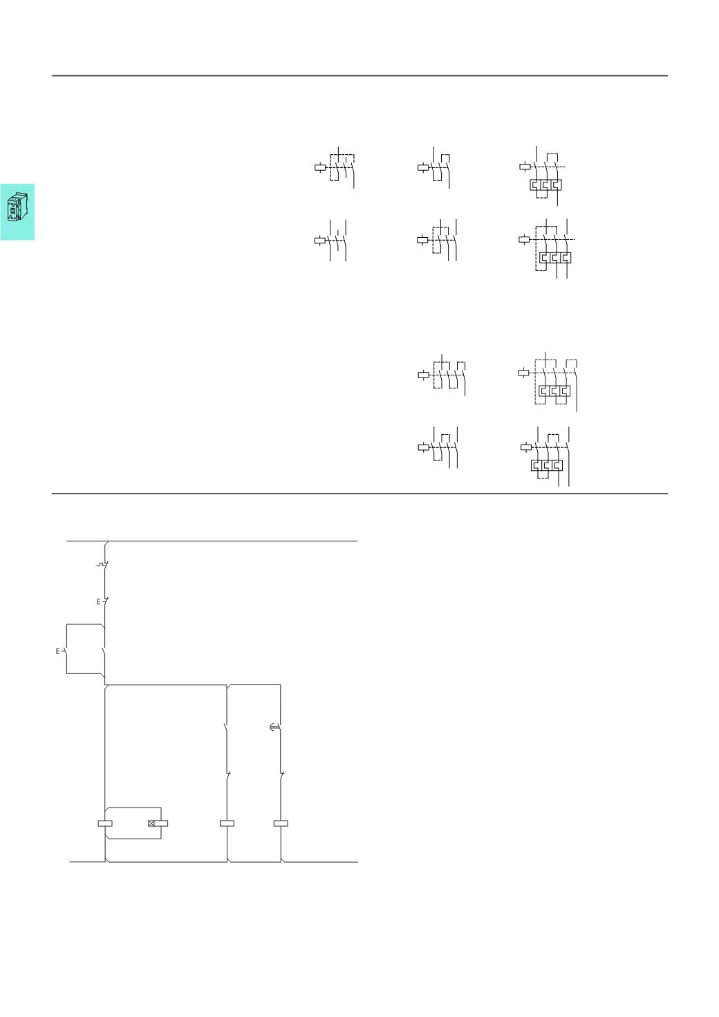
DILEEM ... DILM700
Without overload relay
≤
60
V DC
> 60 V DC
With overload relay
> 60 V DC
1
pole
2
pole
DILEM4
DILMP...
1
pole
2
pole
Wiring, star-delta combination with DILM32-XTEY20
-
Q11
A1
A2
L01
L01
L02
L02
-
K1
N
y D
-
Q13
A1
A2
I
-
K1
57
58
-
Q15
22
21
-
Q15
A1
A2
-
K1
67
68
-
Q13
22
21
-
Q11
14
13
-
F1
95
96
0
DILM, DILEM, DILMP




