Position Switches
Safety position switches
2010 CA08103002Z-EN
www.eaton.comLS...ZBZ
3/27
Safetyposition switchesLS...ZBZ
Safety position switches LS...ZBZ
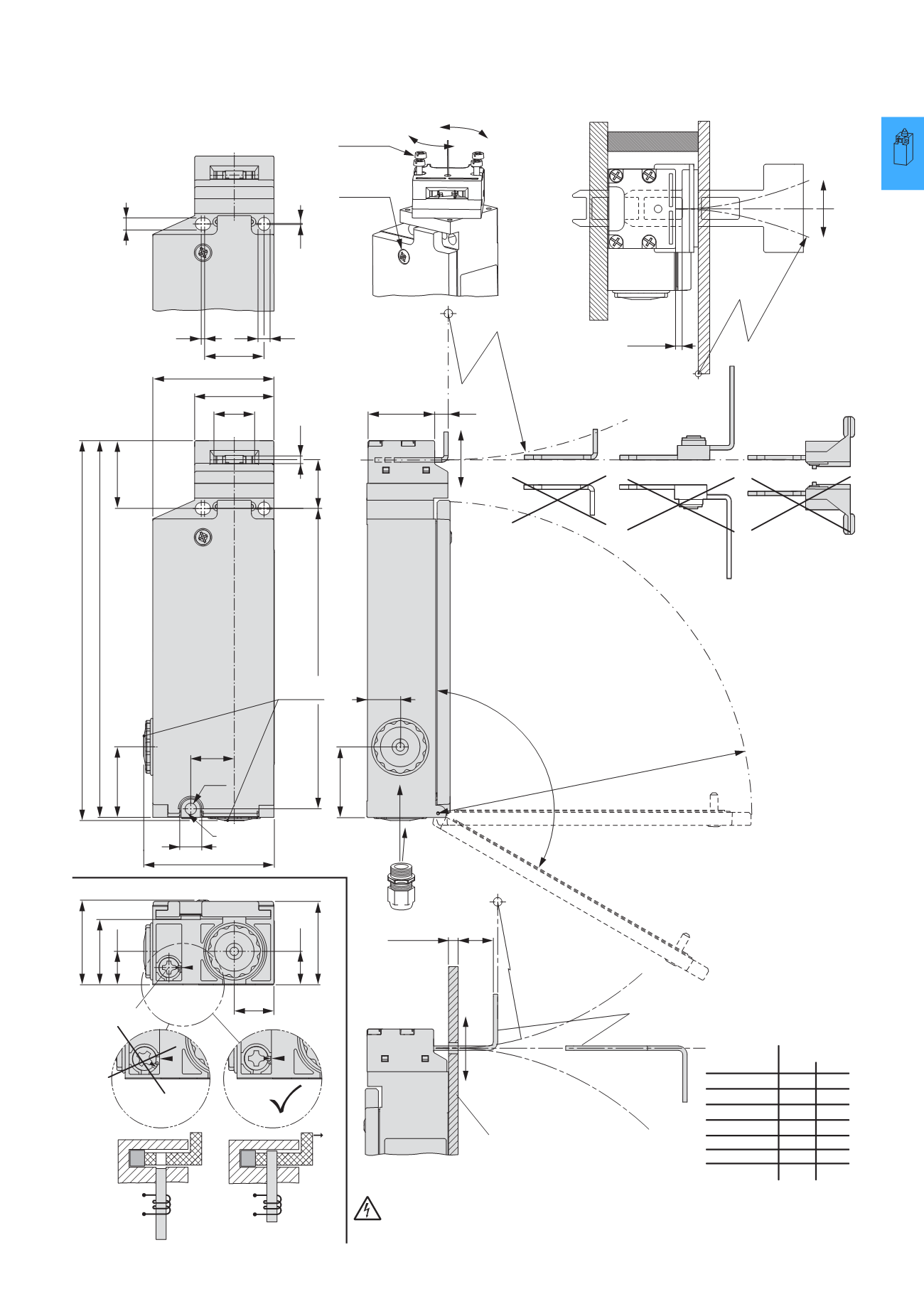
15.15
14.95
37.8
29.6
18
F
39
30.8
18.5
30.8
Z
6
5.5
1.5
5.5
0.5
4 x 90°
27
36
55
32
F
120°
145
32
19.75
o
5.2
F
60
171
F
173
136.3
M20 x 1.5
M5 x
f
35
22.1
3.5
a
M
A
= 1.4 Nm
M
A
= 0.6 Nm
10
Z
LS-XWA-ZBZ
4.3 - 7.2
16
Y
0.1 - 3.0
+1
+1
+0.5
+0.5
b
LS-S...FT-ZBZ/...
F
U = 0 V
U = 0 V
IP65:
V-M20
UL, CSA
M20-NA
15.15
+0.5
+0.5
LS-XG-ZBZ
LS-XW-ZBZ
LS-XWA-ZBZ
LS-XFG-ZBZ
LS-XF-ZBZ
LS-XNG-ZBZ
LS-XNW-ZBZ
R [mm]
Z
350
350
550
350
350
350
150
Y
350
350
550
350
350
350
250
Type
Switch must not be used as a mechanical stop.
a
The auxiliary release mechanism must be sealed for proper operation!
b
Can be used as stop with the corresponding material selection and design.




