3/28 Position Switches
Safety position switches
2010 CA08103002Z-EN
www.eaton.comLS...ZBZ
Safetyposition switchesLS...ZBZ
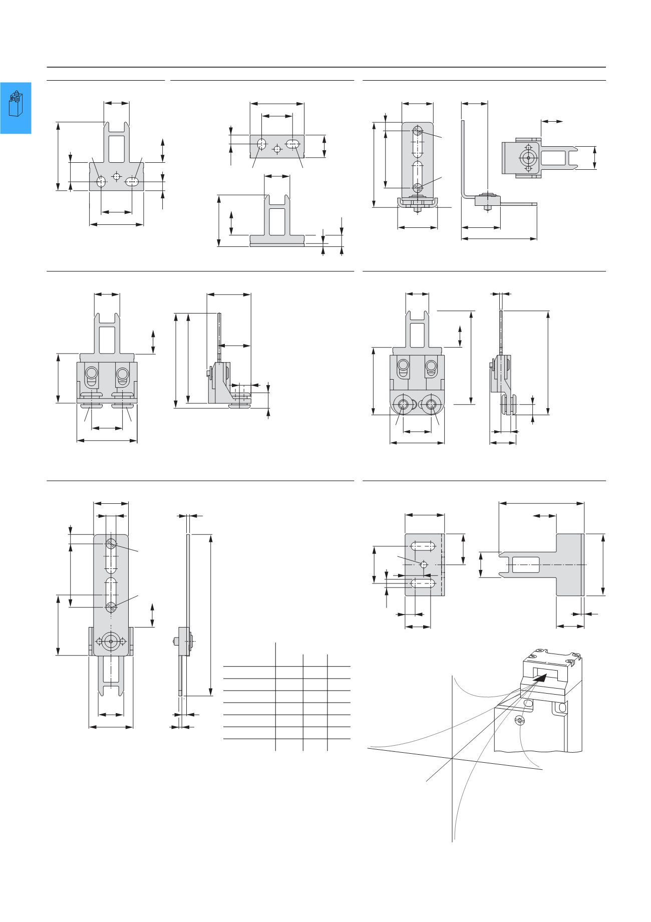
Actuating element
LS-XG-ZBZ
LS-XW-ZBZ
LS-XF-ZBZ
LS-XNW-ZBZ
LS-XNG-ZBZ
Fixing only allowed with M5 fixing screw and washer
according to DIN EN ISO 7093
Fixing only allowed with M5 fixing screw and washer according to
DIN EN ISO 7093
LS-XFG-ZBZ
LS-XWA-ZBZ
Pin with a 4 mm pin after mounting
① Distance to unit head = 0.1 … 3.0 mm
16.5
5.75
20
35
12.45
44.35
M5
M5
a
5.75
15
16.5
2
7.3
20
35
M5
M5
33.45
a
18.9
22.5
41
6
61
28
30
16.5
54.15
M6
M6
a
58.15
28.5
16.5
21.5
10
7.5
61.35
32
20
39
M5
M5
a
16.5
2
67
7
48.35
39
20
18.8
7.5
74.5
M5
M5
a
6.5
22.5
16.5
3
2
30
2
104.5
41
39.1
6
M6
M6
a
18
2
16.5
12
6.5
5.35
24
40
20
16.5
25.5
o
4.1
55.12
a
Part no.
R [mm]
F [N]
Z Y
LS-XG-ZBZ 1700 350 350
LS-XW-ZBZ 1700 350 350
LS-XWA-ZBZ 1600 550 550
LS-XFG-ZBZ 1600 350 350
LS-XF-ZBZ 1600 350 350
LS-XNG-ZBZ 1700 350 350
LS-XNW-ZBZ 1200 150 250
Z
Y
X




