Position Switches
Safety position switches
2010 CA08103002Z-EN
www.eaton.comLSR, LS...ZB
3/29
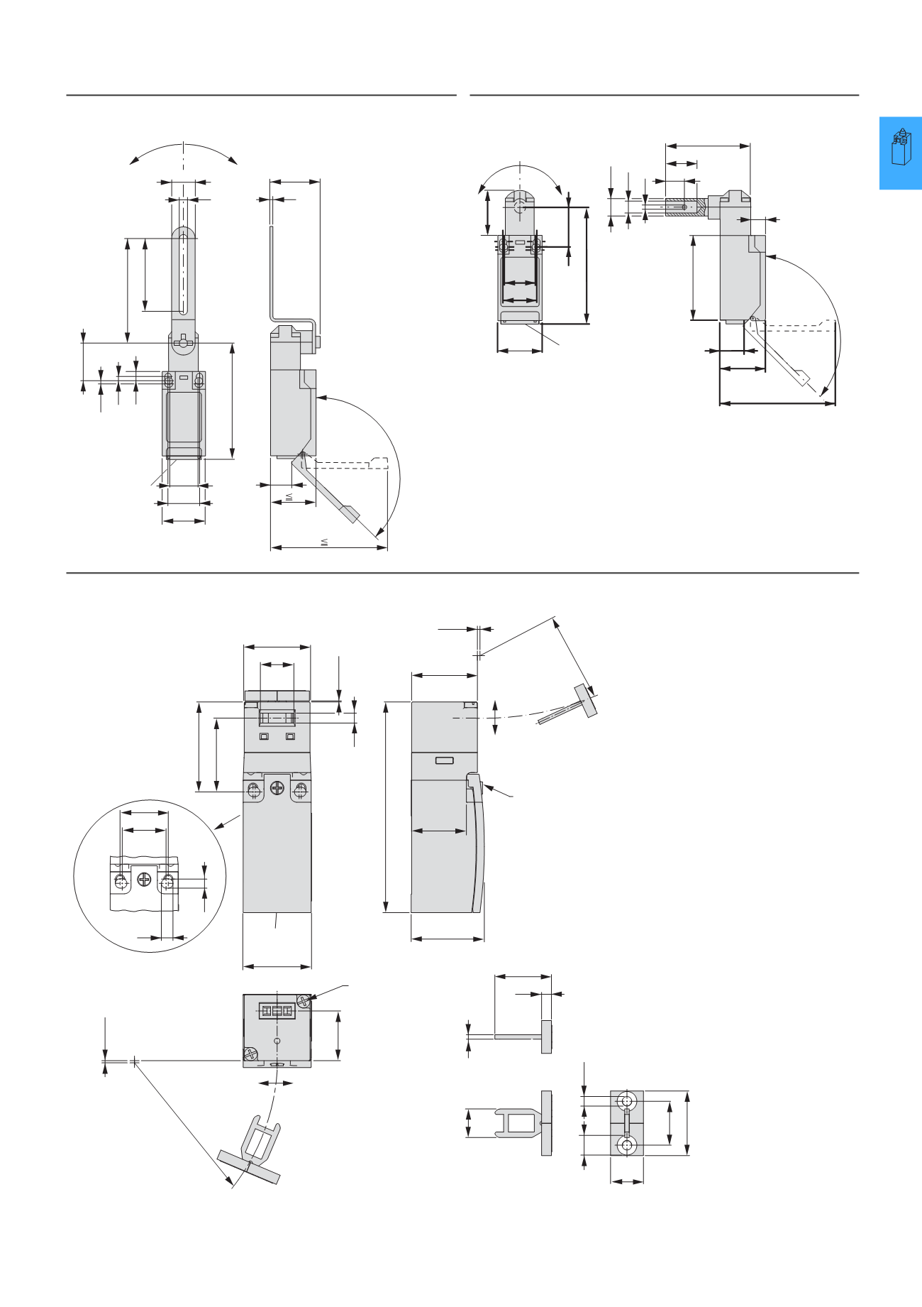
Safetyposition switchesLSR, LS...ZB
Hasp-operated safety switches
Safety hinge switches
LSR-…/TKG
LSR-…/TS
Safety position switches
LS…-ZB
Switch must not be used as a mechanical stop.
34.2
2
5.1
16
135
°
110
°
110
°
16
30
M20
80
20
7.5
22
32
3.5
83
1.55
26.45
72
50
135°
M20
o
o
o
360°
30
26.45
30
80
22
20
16
F
32
F
83
59
56.9
20
12.5
11
12
8
3
5.3
4.1
20
22
M20
x
1.5
33.35
22.65
0.1 – 2.5
R
f
130
15.3
30
33.65
41
4.5
0.1 – 2.5
96
30
0.1 – 2.5
R
f
150
25
+1
+1
M = 0.8 Nm
4.5
2
13
29.4
20
o
9
o
4.4
+1
+1
A
M = 0.6 Nm
A
30
15
25.7




