21/28
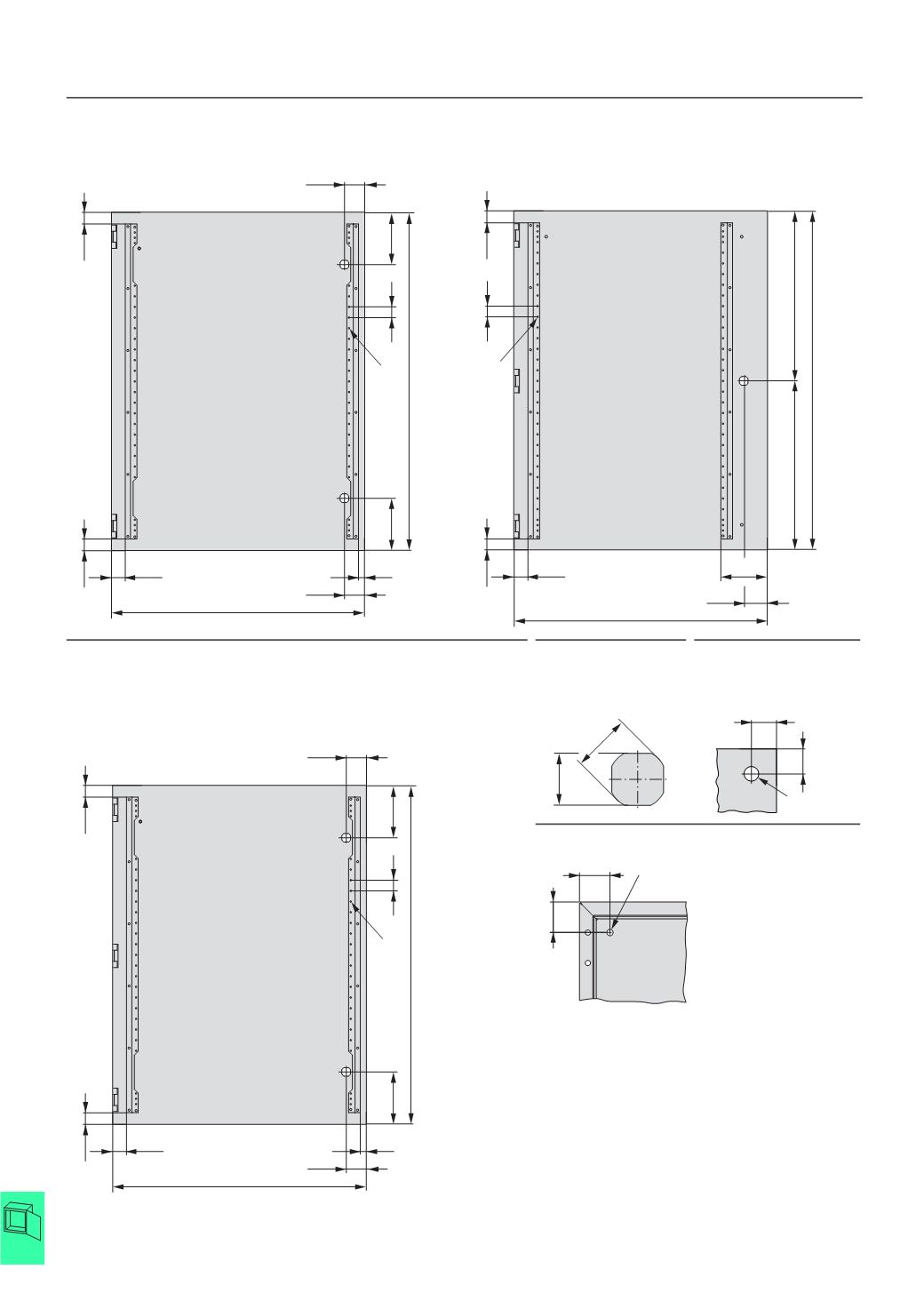
CS sheet steel wall-mounting enclosure
Indoor installation
2010
CA08103002Z-EN
www.eaton.comInternal view, door without enclosure
CS-5.../..., CS-6.../..., CS-7.../...
CS-10.../..., CS-12.../...
DT-5...-CS, DT-6...-CS, DT-7...-CS
DT-10...-CS, DT-12...-CS
DS-5...-CS, DS-6...-CS, DS-7...-CS
DS-10...-CS, DS-12...-CS
Internal view, door without enclosure
Mounting aperture
Position of the 4 drilling
dimensions for wall fixing in
the enclosure rear panel
CS-8.../...
CS-…
CS-…
DT-8...-CS
DS-8...-CS
Position of the 4 threaded studs in the enclosure rear panel
CS-…
32.5
13
47.5
47.5
b-2.5
123
a
123
27.5
27.5
25
o
4
32.5
47.5
73.5
b-2.5
a
=
=
27.5
27.5
25
o
4
q
20.4
+0.1
o
22.5
+0.5
20
20
o
9
4
x
32.5
13
47.5
47.5
b-2.5
123
a
123
27.5
27.5
25
o
4
40
4
x M8 x 25
40
CS-..., DT-...-CS, DS-...-CS




