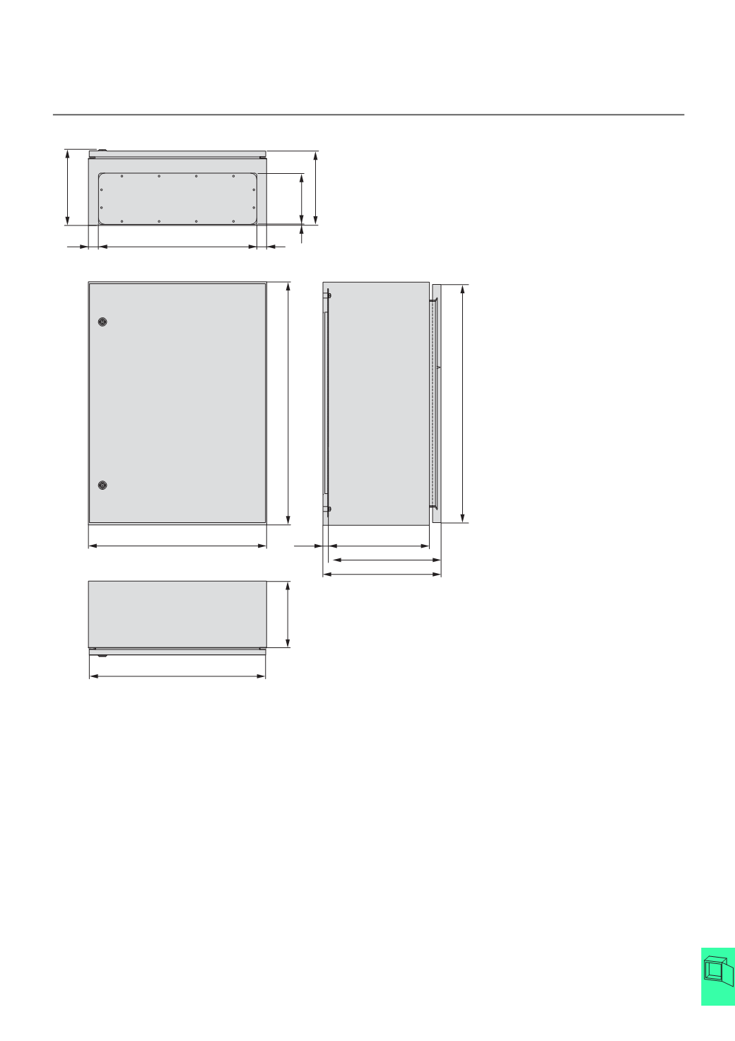
CS sheet steel wall-mounting enclosure
Indoor installation
2010
CA08103002Z-EN
www.eaton.com21/25
Indoor installation
Dimensions
CS wall-mounting enclosures with door and blank plate
CS-...
t2
=
=
b
b-2.5
a
c
c-43
15.2
c-20
a-5
t1
4
c
c+6
c-21
CS-...




