Transformers
Single-phase control transformers
2010
CA08103002Z-EN
www.eaton.com15/15
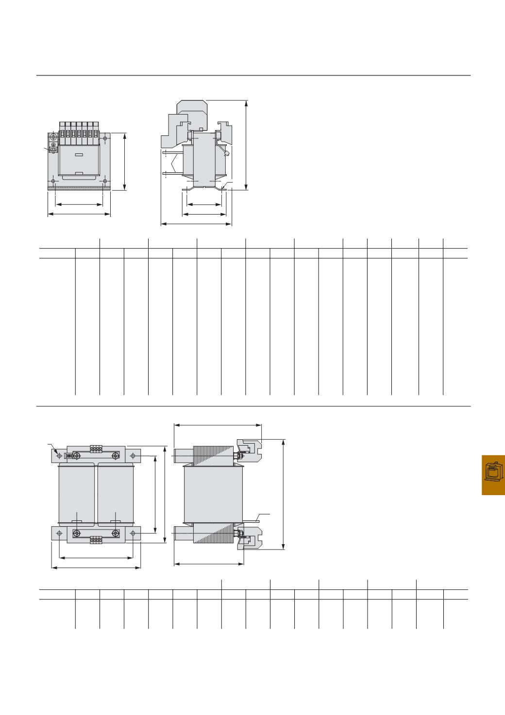
Single-phasecontrol transformers
Dimensions
Single-phase control transformers
STN0.06...2.0
①
Connection lugs
②
Maximum space requirement
③
With STN0,06-0.2 ground connection at bottom
STN2.5...4.0
①
Connection lugs
②
Maximum space requirement
e
2)
a
g
f
b1
c1
1)
3)
o
2)
b±5
2)
c±5
12
V
24
V
42
V
110
V
230
V
Part no.
a
b
c
b
c
b
c
b
c
b
c
e
f
⌀g
b1
c1
STN0.06 66
79
78
79
78
79
78
79
78
79
78
50
56
4.8
x8 67
60
STN0.1
85
75
91
75
91
75
91
75
91
75
91
64
47
4.8
x8 60
76
STN0.16 85
97
91
97
91
97
91
97
91
97
91
64
70
4.8
x8 83
76
STN0.2
106
83
112
83
112
83
112
83
112
83
112
80
61
5.8
x9 80
97
STN0.25 106
103
121
83
112
83
112
83
112
83
112
80
61
5.8
x9 80
97
STN0.315 106
111
121
91
112
91
112
91
112
91
112
80
70
5.8
x9 89
97
STN0.4
121
108
133
88
124
88
124
88
124
88
124
90
68
5.8
x12 86
106
STN0.5
121
120
133
120
133
100
124
100
124
100
124
90
80
5.8
x12 98
106
STN0.63 151
121
157
121
157
107
145
107
145
107
145
122
82
7
x15
104
132
STN0.8
151
124
196
138
157
124
145
124
145
124
145
122
99
7
x15
121
132
STN1.0
151
150
196
164
157
164
157
150
145
150
145
122
125
7
x15
147
132
STN1.3
175
138
213
148
169
148
169
138
157
138
157
135
110
7
x15
135
152
STN1.6
175
183
170
138
216
148
169
138
157
138
157
135
110
7
x15
135
152
STN2.0
175
213
170
168
216
178
169
168
157
168
157
135
141
7
x15
165
152
2)
a
e
g
f
c1
b
2)
c±5
2)
b1±5
1)
b1
c
b1
c
b1
c
b1
c
b1
c
Part no.
a
b
c1
e
f
⌀g 12 V 12 V 24V 24V 42 V 42 V 110 V 110 V 230 V 230 V
STN2.5
230
130
250
190
200
11
185
260
185
250
205
255
160
275
145
255
STN3.0
230
155
250
190
200
11
210
260
230
250
230
255
185
275
170
255
STN4.0
230
170
250
190
200
11
225
260
245
250
245
255
200
275
185
255
STN




