RMQ-Titan pilot devices
RMQ-Titan
2010 CA08103002Z-EN
www.eaton.com2/61
RMQ-Titan
Front fixing (Style Flat)
Base fixing (Construction type: Style mounting)
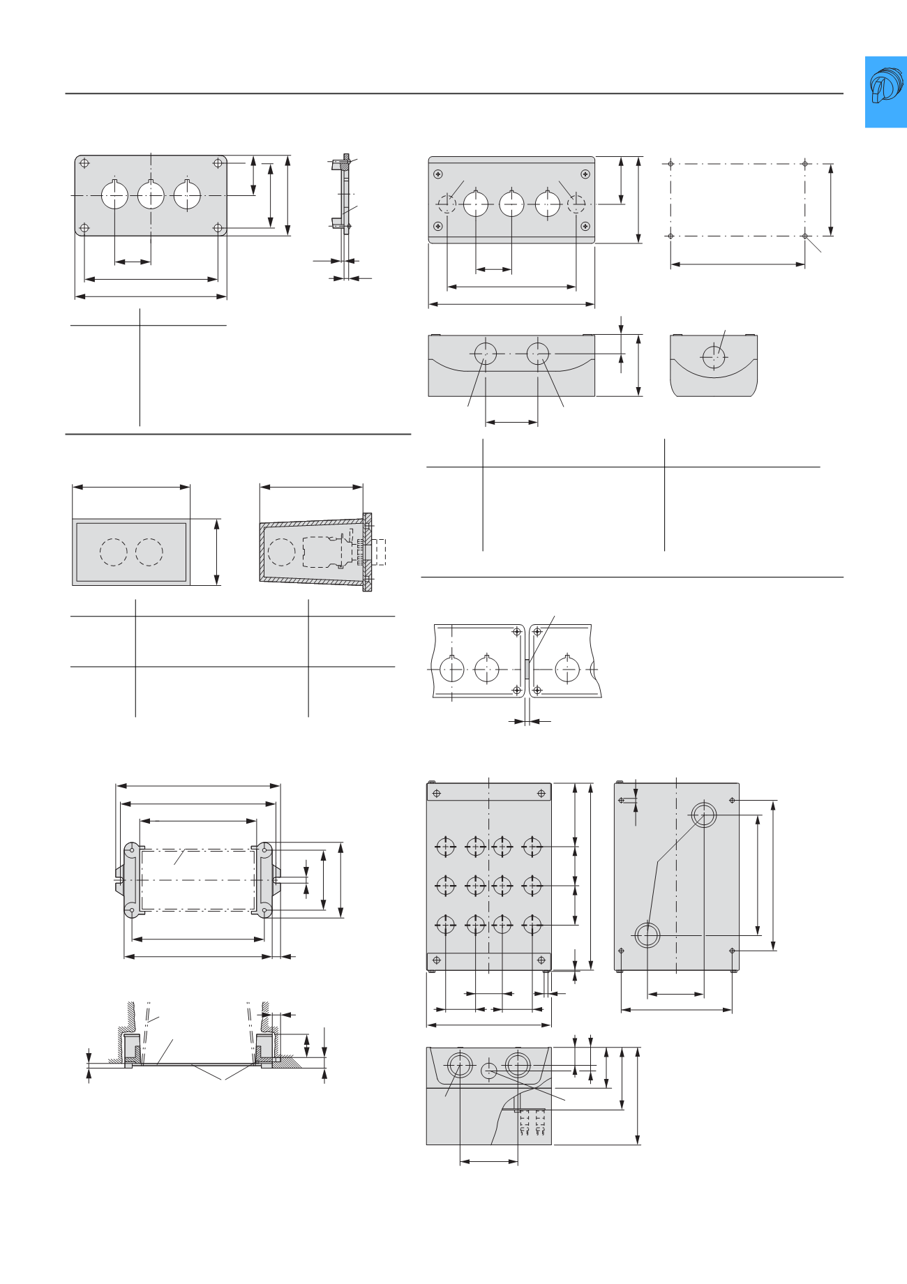
RMQ-Titan mounting panel
RMQ-Titan surface mounting enclosure
M22-E...
M22-I...
Shrouds
M22-H...
Combination of surface mounting enclosures
M22-XI
a Gasket
Shroud with plaster keys
Surface mounting enclosure for 12 mounting locations
M22-UPE
M22-I12
① Box for closing off when plastering
② Plaster thickness less than 8 mm
③ Plaster thickness more than 8 mm
4 x M4 x 16
a1
e
33
72
56
36
3
2.5
Insulation
plate
44
80
66.5
17.8
56
M20/M25
M20
M20
33
b
a
e
48
M20
M20
M4
Part no.
a1
e
M22‐E(Y)1 72
56
M22-E2
105
89
M22-E3
138
122
M22-E4
171
155
M22-E5
204
188
M22-E6
237
221
Part no.
Mounting
locations
a
b
e
Cable entries
M22‐I(Y)1 1
72
42.6
58.5
2
x
M16 3
x
M20 2
x
M25
M22-I2 2
120
85.6
106.5 2
x
M20 3
x
M20 2
x
M25
M22-I3 3
153
118.6 139.5 2
x
M20 2
x
M25 4
x
M20
M22-I4 4
186
151.6 172.5 2
x
M20 2
x
M25 4
x
M20
M22-I6 6
252
217.6 238.5 2
x
M20 2
x
M25 4
x
M20
a2
59
95
M20 M20
M20
Part no.
a2
Cable entries
Construction type
M22-H1
42
3
x
M20
One-piece
M22-H2
75
4
x
M20
M22-H3
108
4
x
M20
M22-H4
141
4
x
M20
Split
M22-H5
174
5
x
M20
M22‐HE6 207
6
x
M20
1
a
4
56
70
M22-H...
e
e + 13
9
9
M22-UPE
M22-H...
F
8
26
a2
a2 + 42
a2 + 32
a
c
b
f
8
74
23
30
52.2
80
125
34
5
38.5
160
38.5
72
142
5.6
154
193
80
50
240
50
1.5
M20
M25
M32
M25
M32
M22-E, M22-I, M22-H, M22-UPE




