68
HAVELLS
Digital Time Switch 1 Channel
Technical Data
Voltage limit
: AC220V ~ 240V 50Hz
On/off operation
: 8on & 8off
Minimum interval
: 1 minute
Weight
: Approx 150g
Display
: LCD
Battery backup
: 15 day
Number of circuits
: 1 NO / NC
Load capacity
: 16A 250VAC (ohmic load cos
Ø=1)
Service life
: Mechanically 107, Electrically
105
Ambient temperature
: 0~40 ˚C
Storage temperature
: -20~70 ˚C
Power consumption
: 5VA
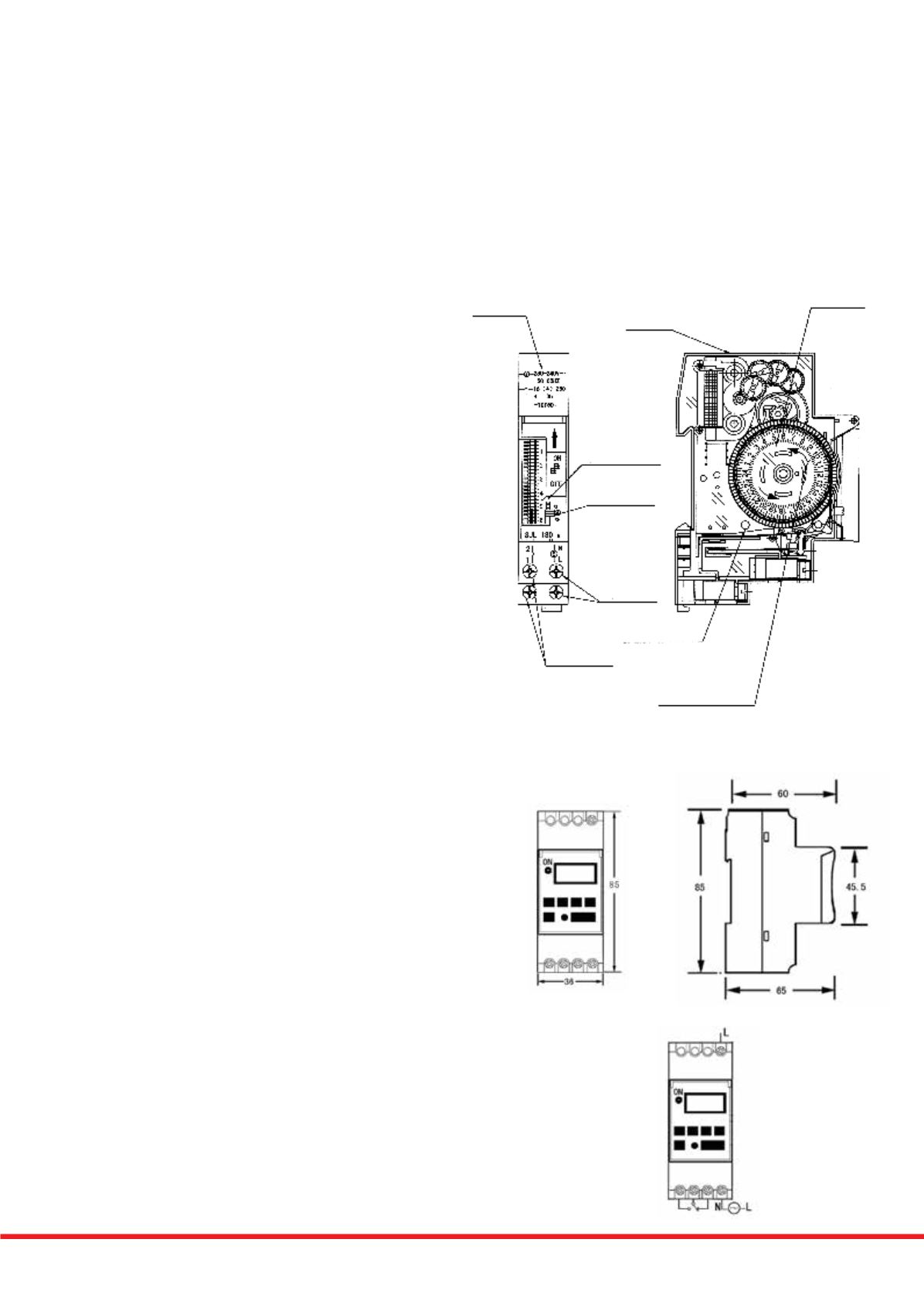
Dimensions :
Connections:
Analogue Time Switch 1Channel
Technical Data
Rated Voltage
: 230V – 240V
Frequency
: 50-60 Hz
Own consumption
: Max 1W
Contact
: Zero, less then 3mm
Switching Power
: 16A, 250V COS =1
12A, 250V COS = 0.7
Incandescent lamp load
: 2300W
Halogen lamp load
: 2300W
Timing basic
: Quartz
Working Precision
: <+1 sec/ day
Shortest switching time
: 15 mins
Display
: Mechanical dial
Operating control
: Dial
Power Reserve
: 72 hours
Weight
: 85 g
Time Switches
Circuit diagram
Case
Present time
(ON OFF position)
Manual switch
Power
terminal
Load terminal
Present time
Power supply
indicator
Dial
Modular Devices and Enclosures




