BETA Protecting
Low-Voltage Fuse Systems
3
NP LV HRC fuse switch disconnectors
3/84
Siemens ET B1 · 10/2008
3
*
You can order this quantity or a multiple thereof.
1)
h = distance from upper edge of switchboard cutout to center of
disconnector mounting.
2)
Masking frame is placed open on the switchgear cabinet panel, for cover
behind control cabinet panel: cutout dimensions on request.
3
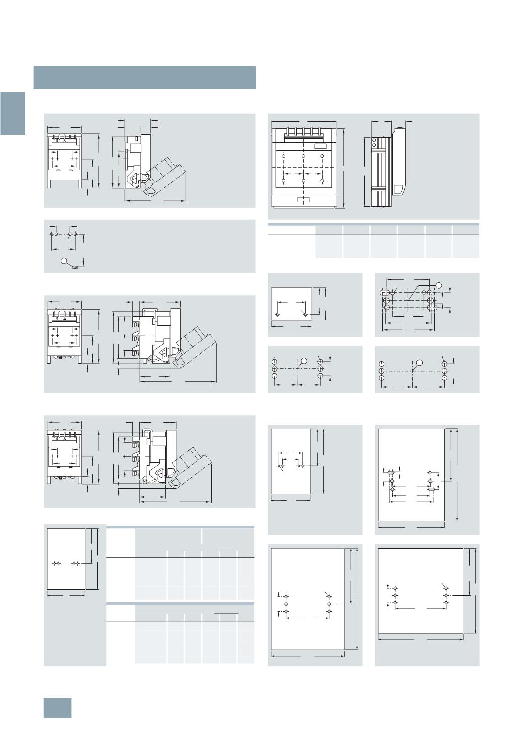
NP40 70
For mounting
3
NP42 70, 3NP43 70, 3NP44 70
For mounting
Drilling pattern for 3NP40 70
3
NY73 22 quick retaining plate
Drilling pattern for 3NP42 70
3
NP40 75-0
With busbar adapter, deep,
busbar width 12 mm or 15 mm and thickness 5 mm or 10 mm
Drilling pattern for 3NP43 70
Drilling pattern for 3NP44
3
NP40 75-1
With busbar adapter, flat,
busbar width 12 mm or 15 mm and thickness 5 mm or 10 mm
$
Bottom edge disconnector-base
%
Center disconnector-base
For plastic frames
Cutouts
2)
for 3NP40 70
Cutouts
2)
for 3NP42
For metal frames
Cutouts for 3NP4
Cutouts
2)
for 3NP43
Cutouts
2)
for 3NP44
NSE0_00206b
108
83,5
17
170
45
36,5
161
190
50
70
101
83,5
NSE0_00207b
d c
e
b
a
f
f
NSE0_00208a
50
70
83,5
Ø5,8
1
Type
a
b
c
d
e
f
3
NP42 70
184
243
66
45.5 215
57
3
NP43 70
210
288
80
48
255
65
3
NP44 70
256
300
94.5 48
267
81
NSE0_00522a
122,5
M 6
85
81,7
97,5
116
114
85
130
50
NSE0_00210b
2
Ø6,5
Ø11
NSE0_00209a
19 132
40 40
130
16
161
108
84
17
170
93
50
70
238
65
50
65
Ø11
NSE0_00211b
2
81
50
81
Ø11
NSE0_00212a
2
NSE0_00213a
72
19 111
40 40
130
16
161
217
108
84
17
170
50
70
NSE0_00523a
118
Ø5,8
50
70
110
195
NSE0_00524a
198
Ø11
114
116
157
274,4
130
25
50
NSE0_00906b
B
h
H
Type Masking frame between
assembly kit
Min. panel cutout
Molded-plastic masking frame behind panel
Type
B H B H h
1)
3
NP40 1
3
NY1 251 130 215 100 180 100
3
NP40 7
3
NY7 200,
3
NY7 201
130 215 118 195 110
3
NP42 7
3
NY7 220 220 375 210 275 157
3
NP43 7
3
NY7 230 245 375 235 315 174
3
NP44 7
3
NY7 240 290 375 280 325 178
Molded-plastic masking frame in front of panel
Type
B H B H h
1)
3
NP40 1
3
NY1 251 130 215 100 155 87
3
NP40 7
3
NY7 200,
3
NY7 201
130 215 118 195 110
3
NP42 7
3
NY7 220 220 375 198 275 157
3
NP43 7
3
NY7 230 245 375 224 315 174
3
NP44 7
3
NY7 240 290 375 270 325 178
NSE0_00525a
224
174
315
130
50
Ø11
NSE0_00526a
270
177,5
267
162
50
Ø11
© Siemens AG 2008




