BETA Protecting
Low-Voltage Fuse Systems
3
NH LV HRC fuse bases
3/60
Siemens ET B1 · 10/2008
3
*
You can order this quantity or a multiple thereof.
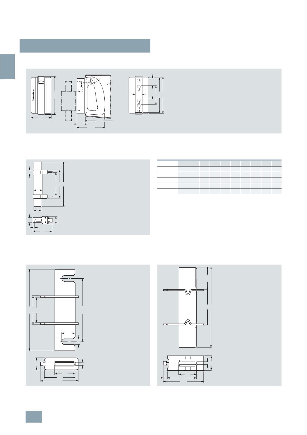
Fuse pullers
Sizes 000 to 4
3
NX1 013 (without sleeve), 3NX1 014 (with sleeve)
27,5
47,5
68
125
130
24
66
136
350
92,5
26
I2_06503a
Sleeve
Isolating links with insulated grip lugs
Size 000/00 to 3
3
NG1 .02
a
e
d
I2_06490
g
b
h
c
3,5
13
6
f
Sizes
Type
a b c d e f
g h
000/00
3
NG1 002 44 15 48 78 54 20.5 8 19
0
3
NG1 102 60.5 15 48 125 68 20.5 8 19
1
3
NG1 202 61 20 53 135 72 23 9 24
2
3
NG1 302 61 26 61 150 72 23 9 29
3
3
NG1 402 61 32 73 150 72 23 9 36
Isolating links with non-insulated grip lugs
Size 4
Size 4a
3
NG1 503
3
NG1 505
I2_06511a
8
68
200
30
150
16
61
32
50
85
105
50
85
105
9
6
40
53,5
88
197
I2_06685a
© Siemens AG 2008




