20/54
CI insulated enclosures
Individual enclosures with LV h.b.c. fuse bases
2010
CA08103002Z-EN
www.eaton.comEnclosures with components fitted
Enclosureswithcomponents fittedIndividualenclosureswith LVh.b.c. fusebases
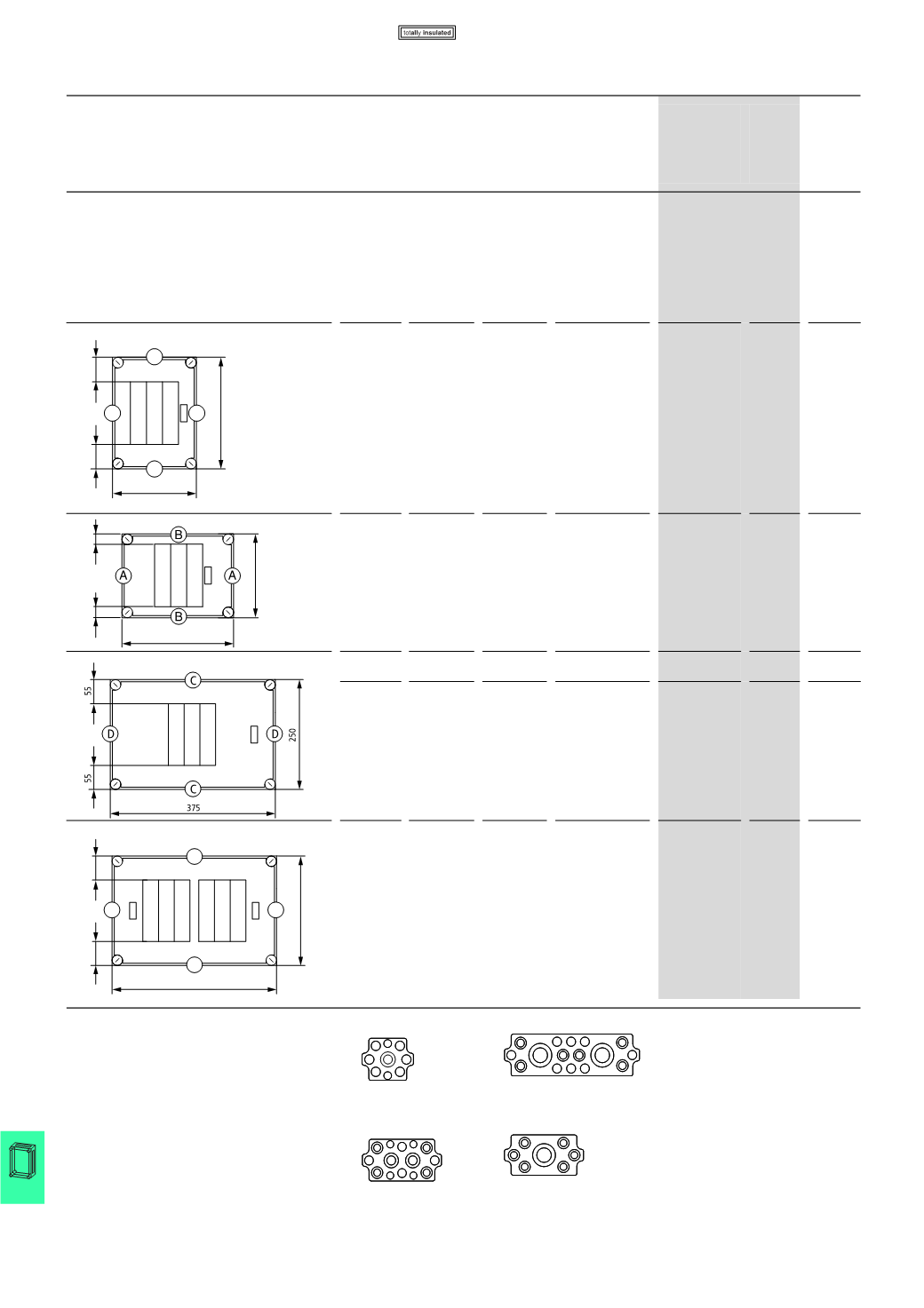
Dimensions
Rated
operational
current
Rated
operational
voltage
Fuse-link
5
th terminal can
be retrofitted
(
neutral conductor)
Part no.
Article no.
Price
See price
list
Std. pack
I
e
U
e
mm
A
V AC
Sizes
Individual enclosures with LV h.b.c. fuse bases
•
Metric cable entry knockouts in all sides
•
Protection type IP65
•
Transparent cover
•
Enclosure depth 150 mm
•
Terminal for connecting the 4th conductor (PEN)
•
Fuse base fitted to steel mounting plate
•
Fixing straps for wall fixing
•
Sealable cover fasteners
100
690
NH00
K50/1
GS00/I23E
027395
1
off
100
690
NH00
K50/1
GS00/I23E-G
029768
1
off
100
690
NH00
K50/1
GS00/I43E
032141
1
off
160
100
500
690
NH00
K95/1N/BR
GS00-160/I43E
034514
1
off
2
x 100
690
NH00
K50/1
2
GS00/I43E
044006
1
off
Notes
Fuse-links→
Chapter 19: Circuit-breakers, fuses
1)
2)
1)
2)
A
A
250
187,5
55
55
B
B
250
25
25
187.5
D
C
250
C
D
55
55
375
A
1
x M32/20
6
x M20
2
x M16
B
2
x M32/20
4
x M25/16
4
x M20
4
x M16
C
2
x M50/20
6
x M25/16
8
x M20
D
1
x M50/32
6
x M25/16
GS00/I..., 2GS00/I...
HPL20054EN




