17/224 Circuit-breakers, switch-disconnectors
Construction size 4: accessories
2010 CA08103002Z-EN
www.eaton.comConstruction size 4:accessories
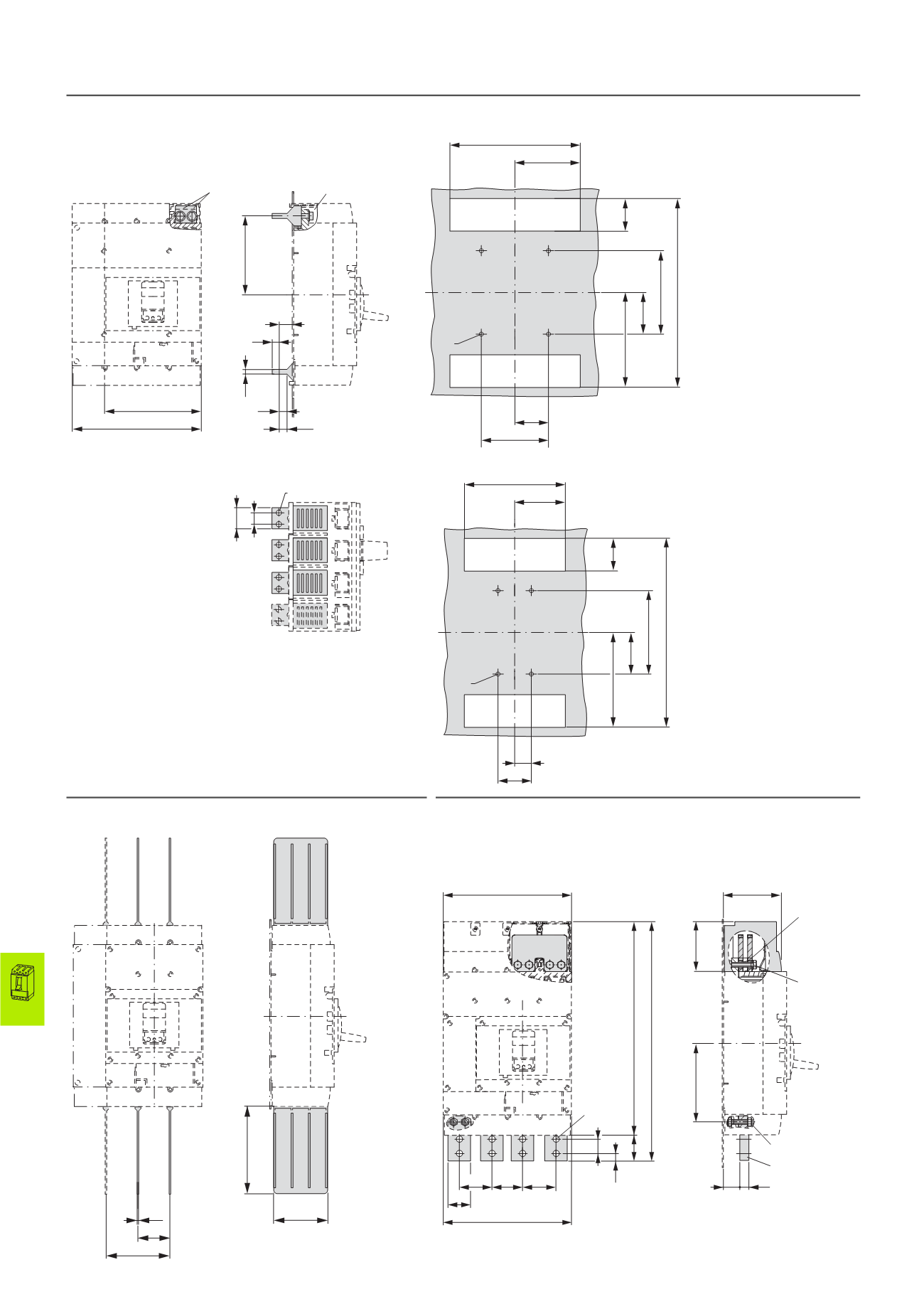
Rear terminal bolts
NZM4(-4)-XKR
Fitting on mounting plate
Rear connection possible also
rotated by 90°.
① 3 pole
② 4 pole
Phase isolators
Jumper kit
NZM4(-4)-XKP
NZM4-4-XKV2P
172
15
30
16
3-5
9.5
M10
x
30
208
104
M5
35
70
180
411
87.5
72
205.5
45
25
o
11
210
280
SW16
a
b
278
139
M5
70
140
180
88
206
72
411
114
190
70
140
3.5
50
280
70
70
70
20
33
o
13
NZM4-4-XKV2P
32
56
16
466
280
125.5
522
171.5
108.5
SW 16
M10 x 60
SW 16
NZM4-4-XKM2S-1600
NZM4(-4)-XKP, NZM4(-4)-XKR




