Circuit-breakers, switch-disconnectors
Construction size 3: accessories
2010 CA08103002Z-EN
www.eaton.com17/219
Construction size 3:accessories
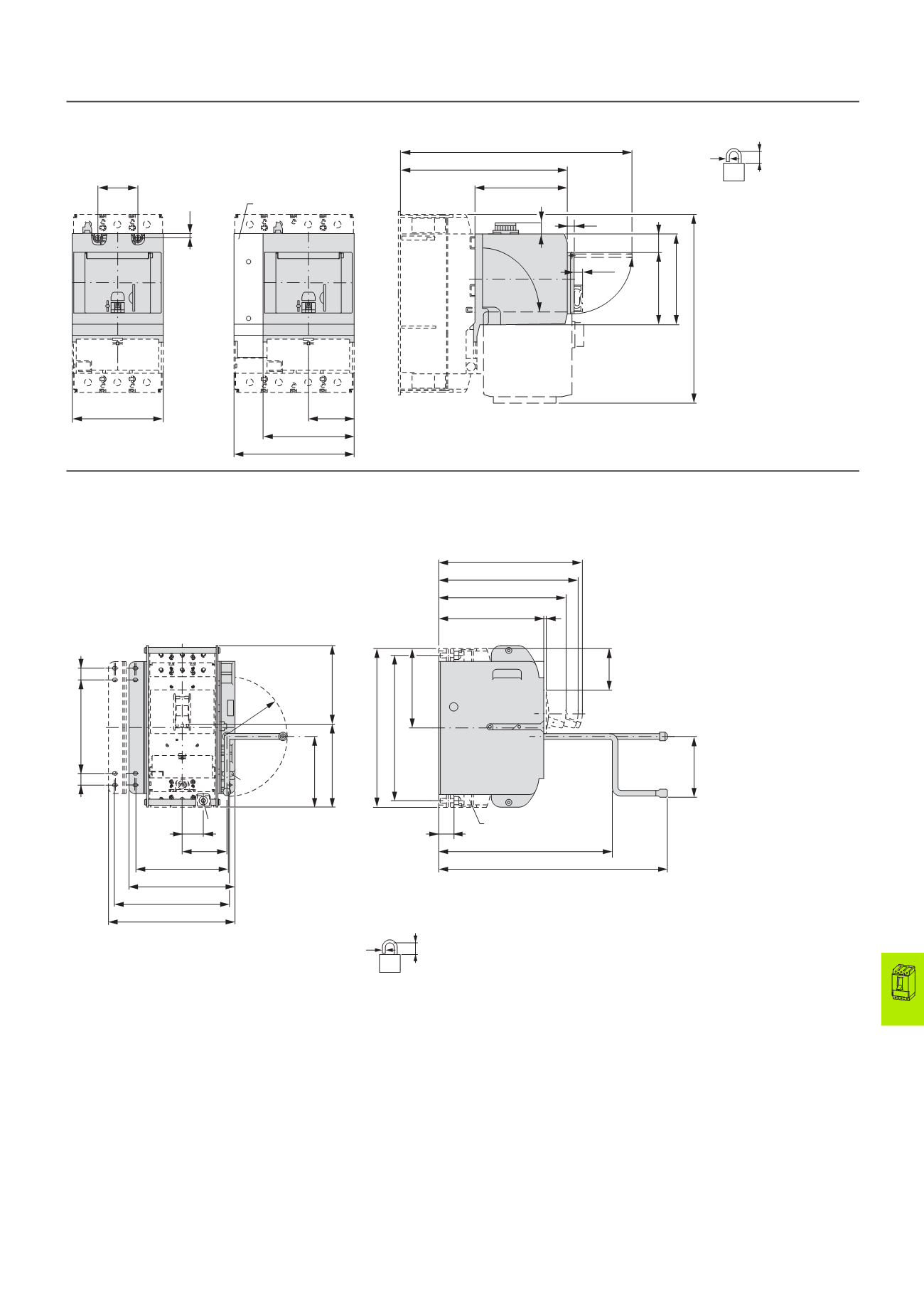
Remote operators
NZM3-XR…
① Up to 3 padlocks
② Remote operator folded
Withdrawable unit with auxiliary plug-in adapter
NZM3-...-SVE
N3...-SVE
NZM3-XSVS
① 3 pole
④ Disconnected
② 4 pole
⑤ Test
⑥ Connected
③ Up to 3 padlocks
60.5
NZM3-XAVPR
143.5
10
260.5
358
F
13
5.5
140
95
28
291.5
140
70
140
185
a
b
17
d
b
d = 4 – 8
b
f
34
45
96
200
a
227
a
250
b
272
b
200
25
25
151.8
SW 8
c
170.8
175.8
R 130
341.6
313.5
171
309
d
299
e
271
f
225.5
5
91
130
31
M10
x
30
400
520
d
b
d = 4 – 8
b
f
34
NZM3-X2..., NZM3...XSVS




