Circuit-breakers, switch-disconnectors
Construction size 4: accessories
2010 CA08103002Z-EN
www.eaton.com17/225
Construction size 4:accessories
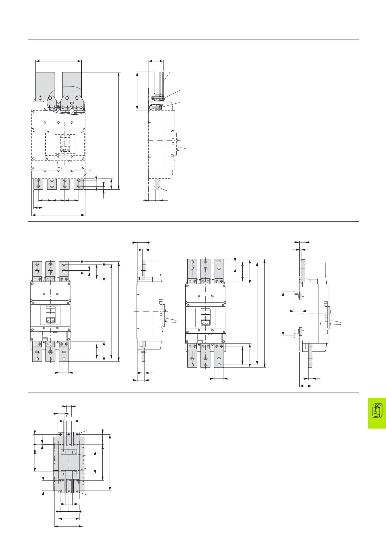
Jumper kit
NZM4-4-XKV2P-1400
Adapter kit
NZM4-XAS14-1250
NZM4-XAS14-1600
Drilling template NZM12-1000 (1250) conversion to NZM4
①Module plate NZM4-XAS12-1000(1250)
② Holes for mounting bracket NZM4-XAS12(M5)
③Mounting bracket NZM4-XAS12
④Mounting rail NZM12
20
33
50
280
70
70
70
o
13
NZM4-4-XKV2P-1400
32
56
16
613
201
240
80.5
M10 x 65
SW 16
M10 x 55
SW 16
NZM4-4-XKM2S-1600
78.5
8
32
108
78.5
500
14
45
50
14
43
530
108
98.5
32
218
118
98.5
540
570
11
31
50
20
66
(38)
118
210
79 79
70
276
100
4.5
95.5
93.5
19 64.5
180
536.5
343
98
a
218
60
50
b
c
d
NZM4-XAS..., NZM12




