Circuit-breakers, switch-disconnectors
Construction size 4: accessories
2010 CA08103002Z-EN
www.eaton.com17/221
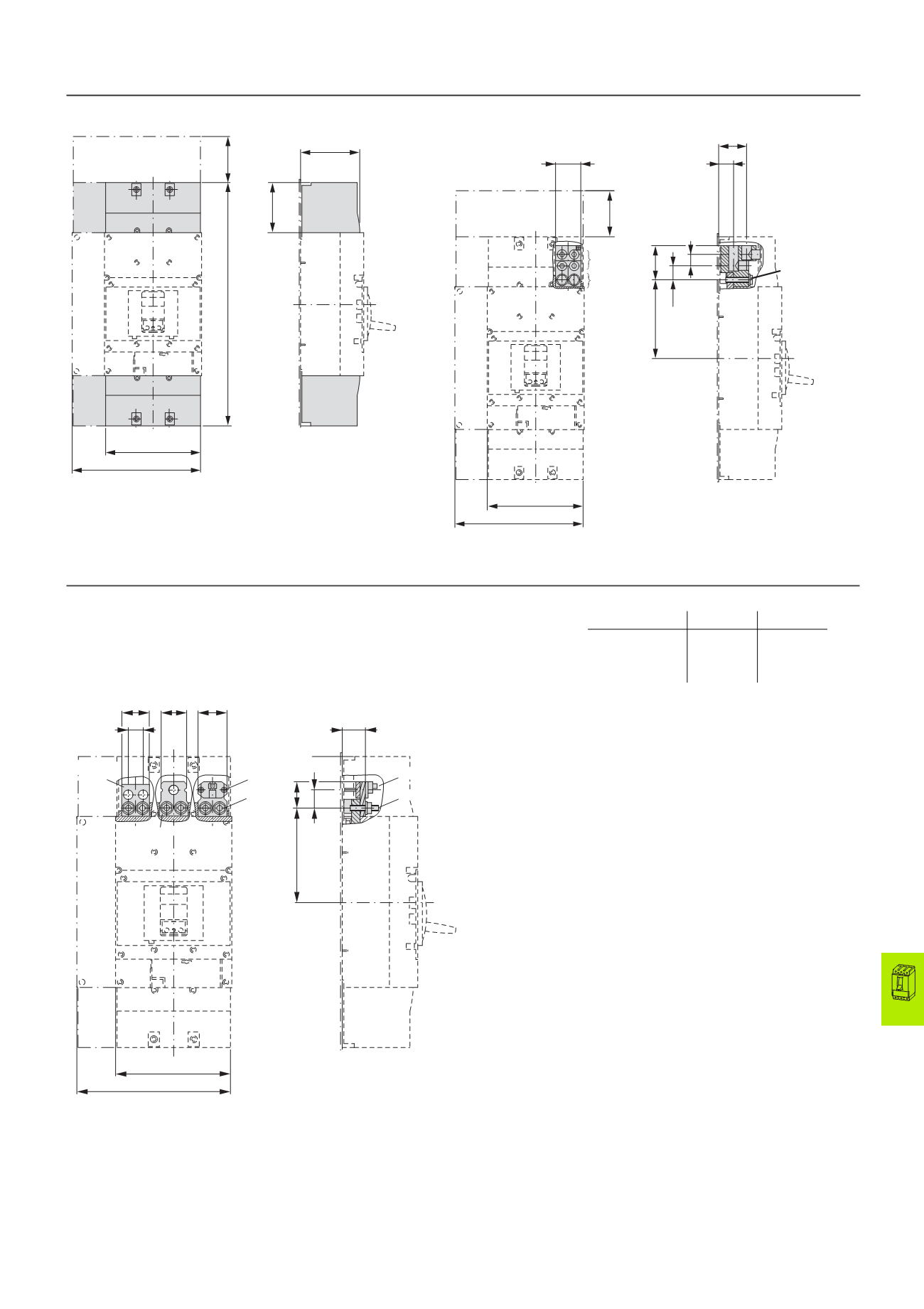
Construction size 4:accessories
Covers
Tunnel terminal
NZM4(-4)-XKSA
NZM4-4-XKA
① 3 pole
② 4 pole
③ Clearance from conductive parts ≧ 100 mm up to 690 V; ≧ 200 mm up to 1000 V
Screw terminals
Module plate
Flat cable terminal
1-hole
NZM4(-4)-XKB
NZM4(-4)-XKM1
2-hole
NZM4(-4)-XKM2
① 3 pole
② 4 pole
③ Clearance from conductive parts
≧ 100 mm up to 690 V;
≧ 200 mm up to 1000 V
c
210
a
280
b
531
f
100
108.5
128
210
280
53
25
f
100
a
b
c
30.5
171.5
73.5
32
60
M10
x
60
4
x
SW8
2
x
SW16
Part no.
a
b
NZM4(-4)-XKM1 36
47
NZM4(-4)-XKM2 32
40
NZM4(-4)-XKB –
47
M10 x 50
210
280
50
40
43
25
a
a
b
43
171.5
b
SW5
NZM4-XKM2
o
11
NZM4-XKM1
SW16
NZM4(-4)-XKB
NZM4(-4)-XKB
NZM4...-XK




