17/196 Circuit-breakers, switch-disconnectors
Construction size 1: accessories
2010 CA08103002Z-EN
www.eaton.comConstruction size 1:accessories
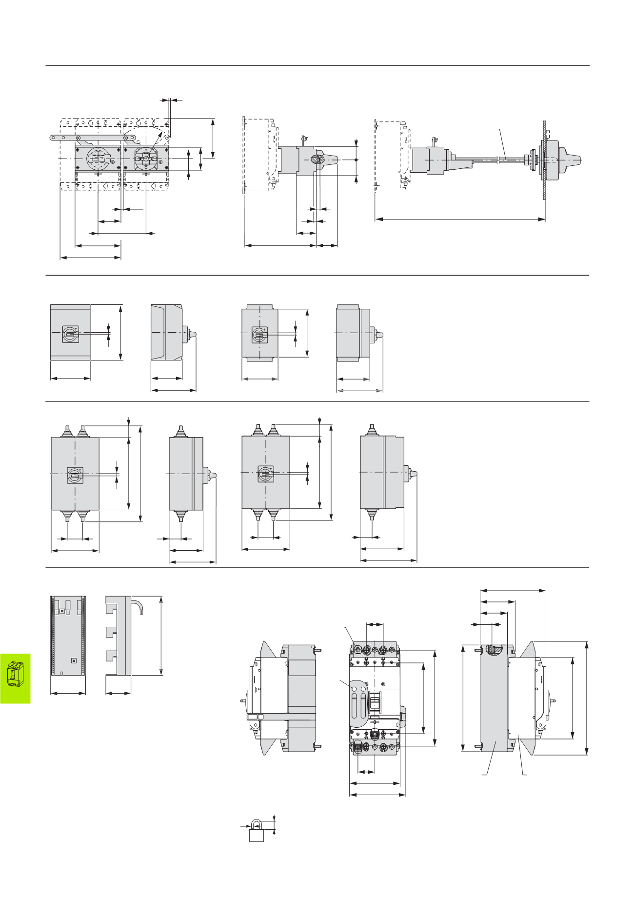
Paralleling mechanism
PN1-XPA
Insulated enclosures
NZM1-XCIK5-T...
NZM1-XCI23-T...
NZM1-XCI43-T...
NZM1-XCI43/2-T...
Component adapter
Plug-in units
NZM1-XAD160
NZM1-XSVS with
NZM.1-...-SVE
N1-...-SVE
① Up to 2 padlocks
90
120
95/110 (125/140)
45
5/20
40
40
143
5
7
31 27
2
80.3
45
R 64
22.5
NZM1/2-XV4(NZM1/2-XV6)
245 – 400 (400 – 600)
200
160
231
280
8
187.5
250
175
248.5
8
250
80
375
495
8
60
60
175
248.5
60
225
298.5
250
80
375
495
8
60
NZM1-...SVE
21
30
48.5
62.3
117
145
202.3
SW4
171
126
30
90
100
190
NZM1-XSVS
a
200
64
90
d
b
d = 4 – 8
b
f
34
PN1-XPA, NZM1-XCI..., NZM1-XAD, NZM1...XSVS




