BETA Protecting
Residual Current Protective Devices
5
SM3 RCCBs, type A
2/8
Siemens ET B1 · 10/2008
2
*
You can order this quantity or a multiple thereof.
■
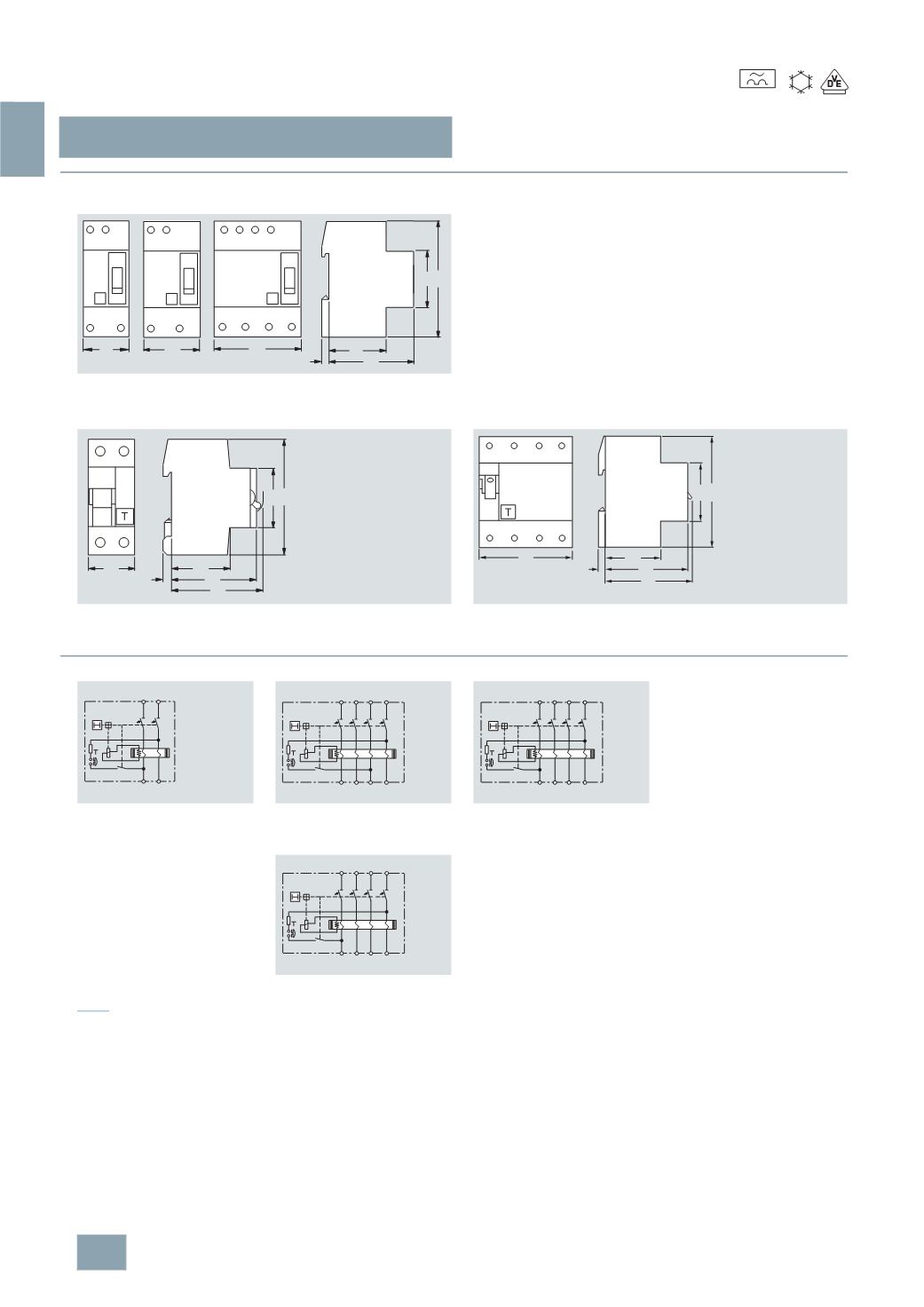
Dimensional drawings
■
Schematics
Note:
The infeed for SIGRES devices must be from below at terminals
2, 4, 6
and N.
RCCB up to 80 A
1
P+N
2
MW
1
P+N
2.5
MW
3
P+N
4
MW
RCCBs 100 and 125 A
1
P+N, 2 MW
3
P+N, 4 MW
T
N 2
N1
36
T
N 2
N1
45
T
72
N 6 4 2
N531
45
90
44
64
7
I2_07860c
45
88
44
36
65
7
70
N 2
N 1
I2_12856a
72
1/
L1 3/L2 5/L3 7/N
2/
L1 4/L2 6/L3 8/N
I2_07830a
45
87
44
65
7
68
1
P+N
3
P+N
up to 80 A
N connection, right
3
P+N
100
A, 125 A
N connection, left
I2_13636
2
N
1
N
I2_13637
2 4 6
N
1 5
N 3
I2_13639
2 4 6
N
1 5
N 3
I2_13638
2 4 6
N
N 3 5 1
-25
(
Type A)
© Siemens AG 2008




