17/232 Circuit-breakers, switch-disconnectors
Construction size 4: accessories
2010 CA08103002Z-EN
www.eaton.comConstruction size 4:accessories
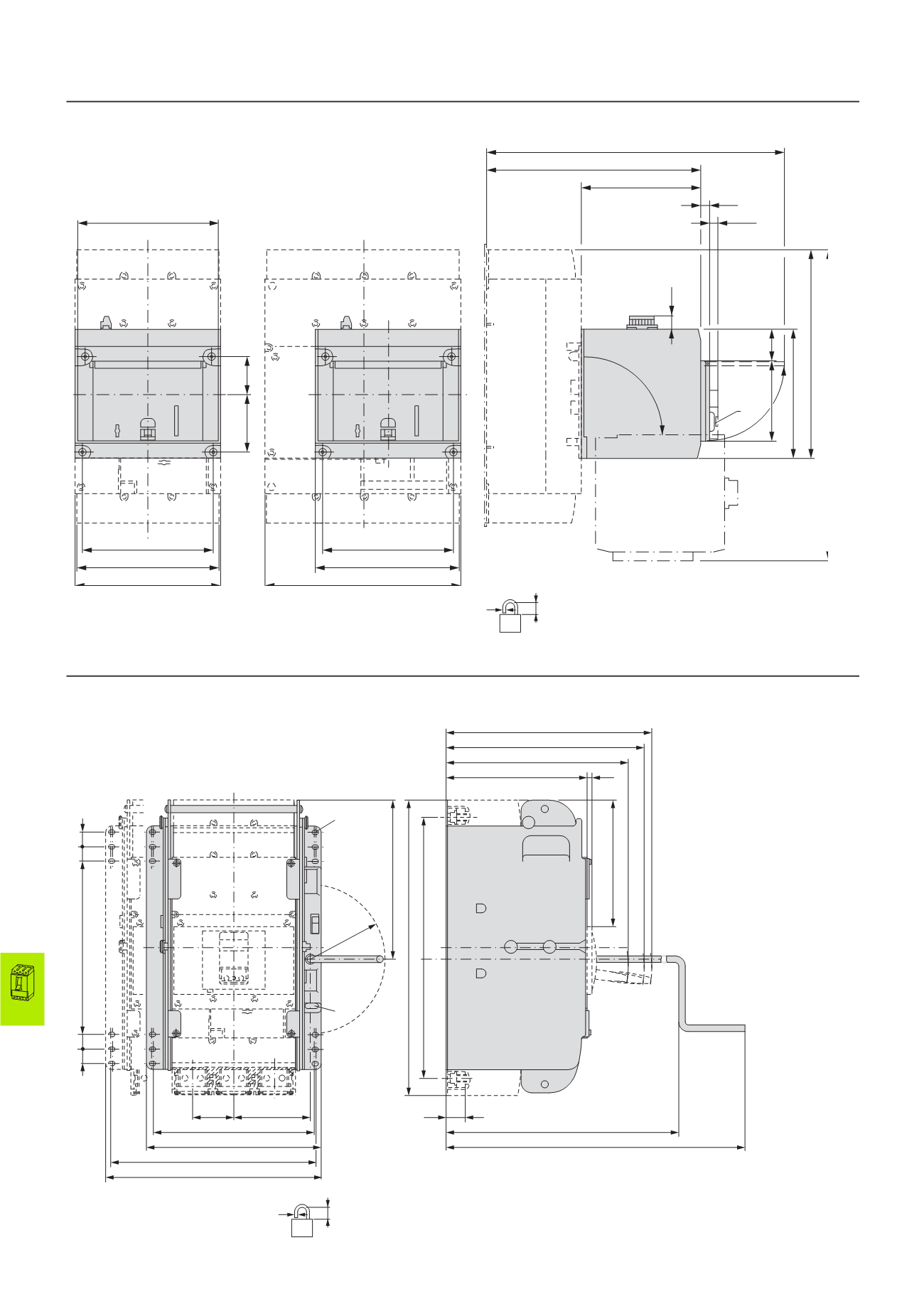
Remote operators
NZM4-XR…
① Up to 3 padlocks
② Remote operator folded
Withdrawable unit
+NZM4-4-XAV
① 3 pole
② 4 pole
④ Disconnected
⑤ Test
⑥ Connected
③ Up to 3 padlocks
204
b
84.4
a
189.5
208
210
55.6
189.5
208
280
435.2
313.4
175.4
12.5
F
13.4
45.5
19.4
117
189
306.4
454.4
d
b
d = 4 – 8
b
f
34
70
131
275
297
350
367
560
33
680
353.5
d
341
e
313
f
243
8
509
451
217
274.5
R 130
25 25
25 25
300
a
b
c
M6
x
12
d
b
d = 4 – 8
b
f
34
NZM4...-XAV




