Busbar system
2010 CA08103002Z-EN
www.eaton.comSASY
16/53
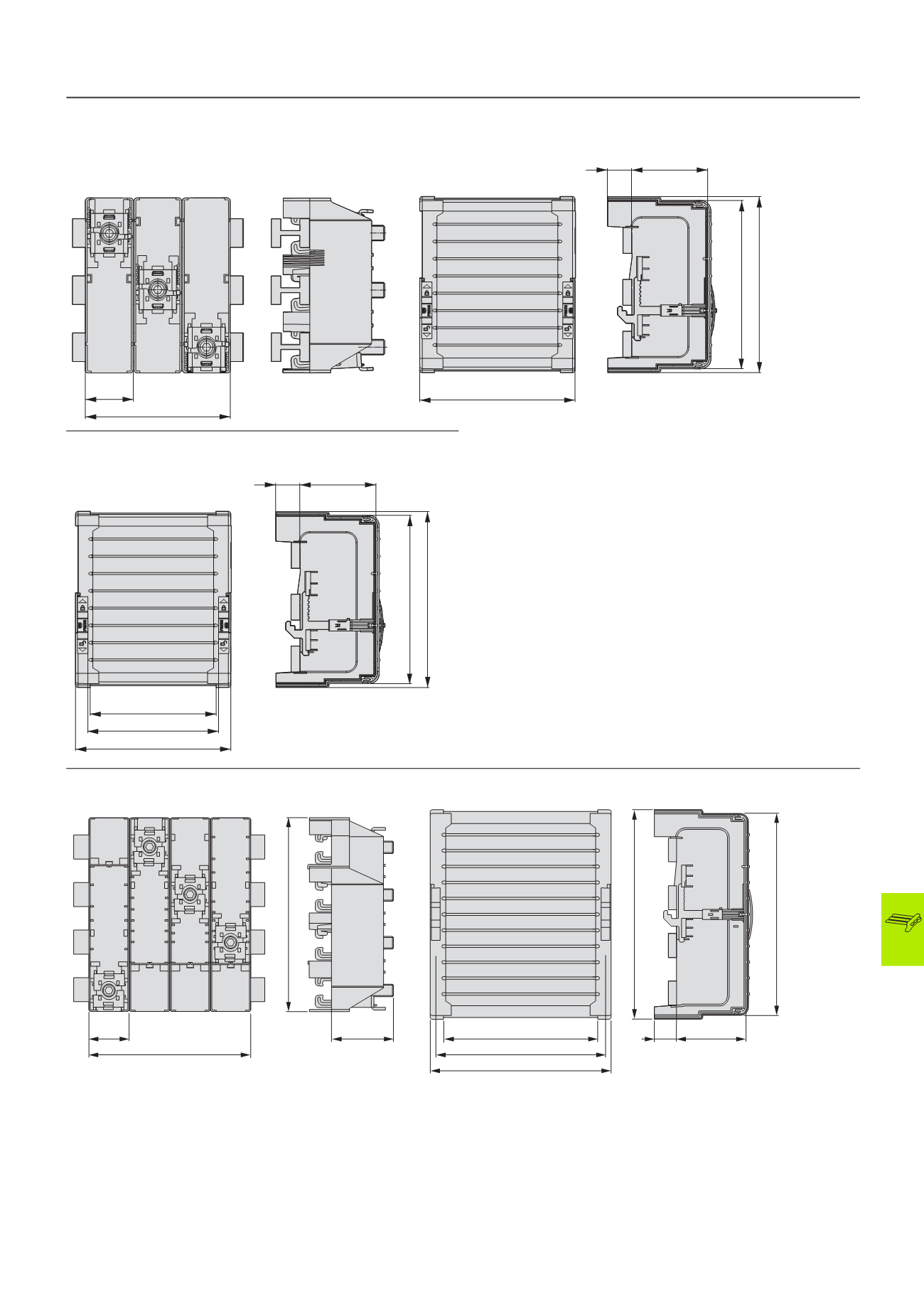
Terminal kits
BBA-TP3/300
BBA-TP3/CU-BAND
CU-BAND BBA-TP3/1000
BBA-TP4/300
BBA-TP4/CU-BAND
51
153
180 - 240
F
88
27.5
204
195
194
214
228
F
88
27.5
204
195
194
228
214
264
244
255
F
88
F
87
51
204
27.5
BBA-TP




